- Saikyo Group トップ
- 新築一戸建てをエリアから探す
- 府中市
- 西府町
- 2号棟 府中市西府町3丁目 新築分譲住宅 全2棟
2号棟 府中市西府町3丁目 新築分譲住宅 全2棟
情報更新日:2026/04/10 次回更新予定日:2026/04/24
所在地東京都府中市西府町3丁目[周辺地図]
交 通南武線「西府」駅徒歩11分





・食洗機や浴室乾燥機など暮らしを彩る多彩な設備も完備しています!
・床下収納やWIC完備の収納豊富な新築住宅です!
すべての画像
新しい暮らしが始まる、洗練された外観。利便性と自然が調和する住環境です!■府中市西府町3 新築一戸建て■
シックに塗り分けられた外壁は色合いも優しく落ち着けるデザイン。風通しや採光にも配慮し、快適にお住まいいただけます。 。 ■府中市西府町3 新築一戸建て■
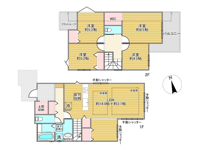
間取り■府中市西府町3 新築一戸建て■
居心地の良いリビングは自然と家族が集まるコミュニケーションスペースとして活用できます。 ■府中市西府町3 新築一戸建て■
キッチンに立った位置から、リビングにいる家族に目線が届く見守りキッチン! ■府中市西府町3 新築一戸建て■
きれいと使いやすさを追求した洗面台。たっぷり間口の洗面ボウルはちょっとした手洗いにも最適です。 ■府中市西府町3 新築一戸建て■
一日の疲れを癒しながら、お子様と一緒にバスタイムも楽しめる清潔感あふれる浴室です。浴室は換気・乾燥・暖房機能付きなので、雨の日のお洗濯や寒い冬でも1年中快適です。■府中市西府町3 新築一戸建て■
大きな窓からはお陽さまの光や爽やかな風をたっぷり取り込めます。室内はいつも明るい印象なので気持ちの良い朝を迎えられます。毎日の生活も明るくなりそう。 ■府中市西府町3 新築一戸建て■
クローゼットはたっぷりと使えるのでお部屋の中はいつもすっきり! ■府中市西府町3 新築一戸建て■
陽当りの良いバルコニー。心地よい風が吹き込み洗濯物だけでなく、お布団もふっかふかです。 ■府中市西府町3 新築一戸建て■
2台駐車可能な広々としたカースペースが嬉しいですね。 ■府中市西府町3 新築一戸建て■
リビング■府中市西府町3 新築一戸建て■
リビングダイニング■府中市西府町3 新築一戸建て■
ダイニング■府中市西府町3 新築一戸建て■
キッチン■府中市西府町3 新築一戸建て■
■府中市西府町3 新築一戸建て■
洗面所■府中市西府町3 新築一戸建て■
ランドリースペース■府中市西府町3 新築一戸建て■
寝室■府中市西府町3 新築一戸建て■
子供部屋■府中市西府町3 新築一戸建て■
収納■府中市西府町3 新築一戸建て■
TVモニター付きインターホン■府中市西府町3 新築一戸建て■
玄関■府中市西府町3 新築一戸建て■
バルコニー■府中市西府町3 新築一戸建て■
キッチン■府中市西府町3 新築一戸建て■
キッチン■府中市西府町3 新築一戸建て■
キッチン■府中市西府町3 新築一戸建て■
洋室■府中市西府町3 新築一戸建て■
収納■府中市西府町3 新築一戸建て■
収納■府中市西府町3 新築一戸建て■
のびやかに広がるリビングは、一年を通して爽やかな光と風に癒される家族のなごみ空間です。 ■府中市西府町3 新築一戸建て■
キッチンからリビング全体を見渡せるので、小さなお子様がいらしても様子を見ながら家事ができますね。 ■府中市西府町3 新築一戸建て■
清潔なパウダールームは身だしなみチェックや肌のお手入れに最適です。収納もあり、スッキリと見映えの良い空間に拵えました。時間に余裕とゆとりを持たせます。■府中市西府町3 新築一戸建て■
ゆったりと足を伸ばせる一坪タイプの浴室です。浴室換気乾燥機付きですので、カビの発生も抑制出来ます。 ■府中市西府町3 新築一戸建て■
風通しのいい自由なプライベート空間。ゆっくりとくつろぐスペースとしてもご利用いただけます! ■府中市西府町3 新築一戸建て■
ひと目で収納物を確認できるウォークインクローゼットは、ゆとりの広さを備えた大型収納。数多くの衣類に加え、足元には引出しや衣装箱、シューズボックスなども収納することができます。 ■府中市西府町3 新築一戸建て■
区画図■府中市西府町3 新築一戸建て■
陽当りの良いバルコニー。心地よい風が吹き込み洗濯物だけでなく、お布団もふっかふかです。 ■府中市西府町3 新築一戸建て■
玄関は清潔感のある空間にしたいもの。ご家族が多いご家庭にはとても便利なたっぷり収納できるシューズボックス付きです。 ■府中市西府町3 新築一戸建て■
カースペース2台利用可。通勤用、家庭用で分けて駐車できるので日々の生活も快適ですね。 ■府中市西府町3 新築一戸建て■
現地外観写真■府中市西府町3 新築一戸建て■
前面道路■府中市西府町3 新築一戸建て■
リビング■府中市西府町3 新築一戸建て■
リビング■府中市西府町3 新築一戸建て■
ダイニング■府中市西府町3 新築一戸建て■
キッチン■府中市西府町3 新築一戸建て■
キッチン■府中市西府町3 新築一戸建て■
洗面所■府中市西府町3 新築一戸建て■
ランドリースペース■府中市西府町3 新築一戸建て■
トイレ■府中市西府町3 新築一戸建て■
寝室■府中市西府町3 新築一戸建て■
子供部屋■府中市西府町3 新築一戸建て■
収納■府中市西府町3 新築一戸建て■
TVモニター付きインターホン■府中市西府町3 新築一戸建て■
バルコニー■府中市西府町3 新築一戸建て■
バルコニー■府中市西府町3 新築一戸建て■
キッチン■府中市西府町3 新築一戸建て■
キッチン■府中市西府町3 新築一戸建て■
キッチン■府中市西府町3 新築一戸建て■
洋室■府中市西府町3 新築一戸建て■
洋室■府中市西府町3 新築一戸建て■
収納■府中市西府町3 新築一戸建て■
収納■府中市西府町3 新築一戸建て■
トイレ■府中市西府町3 新築一戸建て■
担当スタッフより

- 新妻 孝哲
- 府中市立本宿小学校まで徒歩約11分! 府中市立府中第十中学校まで徒歩約5分!
国立市立東保育園まで徒歩約分! 府中あおい幼稚園まで徒歩約3分!
☆当社では現地見学会を毎日開催中!【営業時間:8時30分~19時】
当日のご見学をご希望される場合はお電話が便利!
インターネット予約でいつでもご見学可能!
☆中央線「立川駅」北口から徒歩10分!
キッズスペース完備でお子様連れでもご安心。
提携駐車場が目の前にございますのでお車でのご来店も可能!
◆Saikyo Homeの安心サポート◆
1】ファイナンシャルプランナー個別相談
今後に大切な資金のご相談をFPが無料でご相談お受け致します!
2】オンラインによる接客・見学(実績多くございます)
zoom・LINE・facetimeなど様々なツールで可能!
3】内見時のご送迎(営業車)も快く承ります。
※ワゴン車・チャイルドシートも完備!
また、弊社ではお客様一人一人に合わせ大手銀行から地方銀行
ネット銀行など幅広くご紹介可能です!
各棟情報
物件詳細情報
物件No.20000444513-002
| 所在地 | 東京都府中市西府町3丁目 | ||
|---|---|---|---|
| 交通 | 南武線「西府」駅徒歩11分 南武線「谷保」駅徒歩14分 武蔵野線「北府中」駅徒歩28分 |
||
| 間取 | 4LDK | ||
| 土地面積 | 188.44m² 実測 | ||
| 建物面積 | 108.53m² 実測 | ||
| 販売戸数 | 2戸 | 総戸数 | 全2戸 |
| 構造・規模 | 木造 2階建て | 築年・入居 | 2026年3月上旬 |
| 建築確認番号 | 第25UDI1W建07737号 | 駐車スペース | 2台可 料金:無料 |
| 引渡時期 | 期日指定有(2026年4月上旬) | 地目 | 宅地 |
| 用途地域 | 第一種低層住居専用地域 | 建ぺい率 | 40% |
| 容積率 | 80% | 都市計画 | 市街化区域 |
| 権利種類 | 所有権 | 接道 | 西側4M道路に接道 |
| 小学校区 | 府中市立本宿小学校(850m) | 中学校区 | 府中市立府中第十中学校(350m) |
| 取引態様 | 媒介 | ||
| 設備 | 東京電力・都市ガス・公営水道・本下水 |
||
| 備考・制限等 | ☆住設あんしんサポート 対応物件☆ 最長10年間何度でも利用可能です!! 住宅ローンのご相談も随時受付中です。どのくらいの物件が購入できるのか。 内覧したい物件は購入できるのか。月々のローンはいくらくらいになるのかなど、お気軽にご相談ください! ご来店後は商談スペースから見える場所にキッズスペースを用意しております! お子様と一緒にご来店ください! |
||
こだわり項目
- ※価格は物件の代金総額を表示しており、消費税が課税される場合は税込み価格です。(1,000円未満は切り上げ。)
税率は引き渡し時期により異なりますので、各物件の詳細につきましてはお問い合わせください。 - ※敷地権利が借地権のものは価格に権利金を含みます。
- ※制作中に内容が変更される場合もありますので、あらかじめご了承ください。
- ※購入の前には物件内容や契約条件についてご自身で十分な確認をしていただくようにお願いいたします。
- ※完成予想図はいずれも外構、植栽、外観等実際のものとは多少異なることがあります。
- ※CG合成の画像の場合、実際とは多少異なる場合があります。
周辺地図
周辺施設一覧
- ショッピングセンター
- スーパー
- コンビニ
- ドラッグストア
- ホームセンター
- 飲食店
- その他店舗
- 商店街
- 大学
- 専門学校
- 高校・高専
- 中学校
- 小学校
- 保育園
- 幼稚園
- 公民館・児童館
- 病院
- 郵便局
- 役所
- 図書館
- 金融機関
- 警察・消防
- 趣味・娯楽施設
- 公園・運動施設
- 周辺の街並み
- 駅
- その他
- Saikyo Group トップ
- 新築一戸建てをエリアから探す
- 府中市
- 西府町
- 2号棟 府中市西府町3丁目 新築分譲住宅 全2棟
























































