- Saikyo Group トップ
- 新築一戸建てをエリアから探す
- 調布市
- 入間町
- 調布市入間町3丁目 新築分譲住宅 1棟
調布市入間町3丁目 新築分譲住宅 1棟
情報更新日:2026/04/19 次回更新予定日:2026/05/03
所在地東京都調布市入間町3丁目[周辺地図]
交 通小田急小田原線「成城学園前」駅徒歩21分





・床暖房完備で寒い日でも安心。あったかなリビングで毎日を過ごせます!
・食洗機・浴室乾燥機など家事が楽になる設備が満載のお家です。
すべての画像
シンプルでスタイリッシュな外観デザインです■調布市入間町3 新築一戸建て■
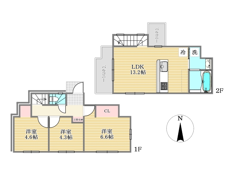
間取り図■調布市入間町3 新築一戸建て■
街に溶けこみ美しい景観を生み出すこの邸宅は採光や風通しまで考え抜いて造りあげました。■調布市入間町3 新築一戸建て■
風通しや採光にも気を配った設計のお家は、快適な住環境をお約束します。■調布市入間町3 新築一戸建て■
完成済みの物件です。実際のお部屋をご見学いただけます。ぜひお問い合わせください■調布市入間町3 新築一戸建て■
前面道路は車通りも少なく、お子さまのいるご家庭でも安心ですね。■調布市入間町3 新築一戸建て■
周囲にはスーパーをはじめとした買い物施設も揃っています。住みやすさと利便性を兼ね備えた環境です。■調布市入間町3 新築一戸建て■
■調布市入間町3 新築一戸建て■
担当スタッフより
- 物件担当より
- 調布市立若葉小学校まで徒歩約13分!
調布市立第四中学校まで徒歩約13分!
おおたかの空保育園まで徒歩約7分!
【営業時間9:00~19:00】(水曜定休)
上記時間はお電話が繋がりやすくなっております。ぜひお気軽にご連絡下さい!
【Saikyo Homeのご安心サポート】
◆現地見学会(事前に予約お願いします。)◆
毎日ご見学・ご相談可能です。平日、夜間も相談可能です。(9:00~21:00)
自宅送迎、最寄り駅待ち合わせも可能ですのでご相談下さい。
◆ファイナンシャルプランナー個別相談◆
住宅購入に関わるお金の問題についてファイナンシャルプランナー
が無料でお客様のご相談をお受けします。
◆オンライン接客・内見◆
店舗へ行くことなくパソコンやスマートフォン上のビデオ通話で
実際に内覧して頂く事が可能です。
LINE通話・Zoom・face timeなどがご対応可能です。
◆住設あんしんサポート◆
最長10年間何度でも新品交換含め無料修理が
窓口一本化でスムーズに行える弊社ならではのサービスです。
物件詳細情報
物件No.20000441451
| 所在地 | 東京都調布市入間町3丁目 | ||
|---|---|---|---|
| 交通 | 小田急小田原線「成城学園前」駅徒歩21分 京王線「仙川」駅徒歩22分 小田急小田原線「喜多見」駅徒歩24分 |
||
| 間取 | 3LDK | ||
| 土地面積 | 98.94m² 実測 | ||
| 建物面積 | 65.41m² 実測 | ||
| 販売戸数 | 1戸 | 総戸数 | 全1戸 |
| 構造・規模 | 木造 2階建て | 築年・入居 | 2024年9月 |
| バルコニー | 南向き | 建築確認番号 | 第号 |
| 駐車スペース | 1台(カースペース) | 引渡時期 | 相談 |
| 国土法届出 | 不要 | 地目 | 宅地 |
| 用途地域 | 第一種低層住居専用地域 | 建ぺい率 | 40% |
| 容積率 | 80% | 都市計画 | 市街化区域 |
| 権利種類 | 所有権 | 接道 | 北西側2.7M公道に接道 南側3.3M公道に接道 |
| 小学校区 | 調布市立若葉小学校(900m) | 中学校区 | 調布市立第四中学校(900m) |
| 取引態様 | 媒介 | ||
| 設備 | 本下水 東京電力・都市ガス・公営水道・公共下水 |
||
| その他制限事項 | 景観法、日影制限有 | ||
| 備考・制限等 | ☆住設あんしんサポート 対応物件☆ 最長10年間何度でも利用可能です!! 住宅ローンのご相談も随時受付中です。どのくらいの物件が購入できるのか。 内覧したい物件は購入できるのか。月々のローンはいくらくらいになるのかなど、お気軽にご相談ください! ご来店後は商談スペースから見える場所にキッズスペースを用意しております! お子様と一緒にご来店ください! |
||
こだわり項目
- ※価格は物件の代金総額を表示しており、消費税が課税される場合は税込み価格です。(1,000円未満は切り上げ。)
税率は引き渡し時期により異なりますので、各物件の詳細につきましてはお問い合わせください。 - ※敷地権利が借地権のものは価格に権利金を含みます。
- ※制作中に内容が変更される場合もありますので、あらかじめご了承ください。
- ※購入の前には物件内容や契約条件についてご自身で十分な確認をしていただくようにお願いいたします。
- ※完成予想図はいずれも外構、植栽、外観等実際のものとは多少異なることがあります。
- ※CG合成の画像の場合、実際とは多少異なる場合があります。
周辺地図
周辺施設一覧
- ショッピングセンター
- スーパー
- コンビニ
- ドラッグストア
- ホームセンター
- 飲食店
- その他店舗
- 商店街
- 大学
- 専門学校
- 高校・高専
- 中学校
- 小学校
- 保育園
- 幼稚園
- 公民館・児童館
- 病院
- 郵便局
- 役所
- 図書館
- 金融機関
- 警察・消防
- 趣味・娯楽施設
- 公園・運動施設
- 周辺の街並み
- 駅
- その他
- Saikyo Group トップ
- 新築一戸建てをエリアから探す
- 調布市
- 入間町
- 調布市入間町3丁目 新築分譲住宅 1棟








