- Saikyo Group トップ
- 新築一戸建てをエリアから探す
- 三鷹市
- 中原
- 1号棟 三鷹市中原4丁目 新築分譲住宅 全2棟
1号棟 三鷹市中原4丁目 新築分譲住宅 全2棟
情報更新日:2026/04/23 次回更新予定日:2026/05/07
所在地東京都三鷹市中原4丁目[周辺地図]
交 通京王線「調布」駅バス18分 停歩3分





◆POINT1◆ 太陽光発電設備標準搭載物件!蓄電池システム利用で停電時も安心です!
◆POINT2◆ LDK広々16.5帖!ご家族の会話を重視したリビングイン階段!全居室2面採光の大型4LDK!
◆POINT3◆ 防犯カメラやピッキング対策付き玄関ドアなどセキュリティ面も良好です!
すべての画像
その他
開放感と採光にこだわった広々としたLDKです。陽光いっぱいの空間で家族団らんの時間も増えそうですね!
全体区画図
バルコニーに出入りの出来る洋室は、たくさん陽光が差し込む明るい空間です。朝も気持ちよく起きられそうです♪
京王線「調布」駅とJR中央線「三鷹」駅がバス便にて利用可能な立地です!京王線「つつじヶ丘」駅は徒歩利用も可能です!
ご家族の会話やコミュニケーションを重視したリビングイン階段です!「おはよう」や「おやすみ」、「おかえり」のある毎日を!
リビングにいる家族とコミュニケーションをとりながら作業が出来る人気のカウンターキッチン。お子様がリビングにいても目が届くので安心です。
一日の疲れを癒してくれる一坪タイプの広々バスルーム♪雨の日のお洗濯にも大活躍な浴室暖房乾燥機付きです!
女性にはうれしいシャンプードレッサー付きの三面鏡洗面化粧台。収納スペースも十分ございますので、ドライヤーなどすっきりと片付きます♪
1Fと2Fにトイレがございますので、朝の忙しい時間帯も安心です。毎日使う場所だからこそ、綺麗に清潔にこだわりたいですね♪
玄関には収納力に優れたシューズボックスがございますので、ご家族みんなの靴が十分入ります!
2面採光で明るく風通しも良好です!天気の良い日は是非窓を開けて空気の入れ替えをしてみるのはいかがでしょうか♪
大容量のクローゼットは、たっぷり収納ができて、ひと目で収納物を確認できるので、必要な物をすぐに取り出せます。
2部屋から出入りが出来る続きバルコニーは家事動線が良く、沢山の洗濯物やお布団がいっぺんに干せます!南向きで陽当たりも良好です♪
家の顔となる玄関は、格調高いデザイン性が求められます。玄関は、高級感と断熱性、防犯性に優れた玄関ドアを標準装備。
カースペースはアスファルト仕上げの為、雨の日でも足元が気になりません!自転車やバイクを置くスペースもございます!
交通量の少ない前面道路ですので、小さなお子様がおられるご家庭でも安心してお住まいいただけます。
窓が多く、採光を取り込める面積が大きい事で明るく気持ちの良い空間となっております♪家族みんなが集まる場所がいつでも明るいのは嬉しいですね!
キッチンスペースは冷蔵庫や食器棚などを置くスペースが十分に確保されております。オシャレなカップボードを置きたくなりますね♪
白を基調とした清潔感のある広々とした玄関は客人を招く際にも笑顔で出迎えられそうです。
南側より陽光を取り込める居室は、長時間、陽光が差し込み明るく快適な空間です♪天気の良い日は照明要らずです!
白を基調とした洋室は清潔感があり、落ち着いた空間です。木の温もりが優しいフローリングで、北欧風インテリアが似合いそうな空間です。
クローゼット付きの居室は、洋服や荷物など仕分けができるので、お子様も整理整頓がしっかりできますね。
太陽光発電設備標準搭載物件!蓄電池システム利用で停電時も安心です!
LDK広々16.5帖!ご家族の会話を重視したリビングイン階段!全居室2面採光の大型4LDK!
防犯カメラやピッキング対策付き玄関ドアなどセキュリティ面も良好です!
前面道路、幅員がございますので、駐車もスムーズに行えます!駐車が少し苦手なママさんでも安心ですね♪
【3口ガスコンロシステム】
3口ガスコンロシステムはたくさんの料理が同時に作れて便利な上、凹凸が少ないフラットトップなのでお掃除も楽々です。
【浄水器】
浄水器をスリムに内蔵したハンドシャワー式の水栓金具です。シンクもスッキリ!
【床下収納】
日用品のストックや、使用頻度の低い物などを収納するのに便利なスペースです。
「ウォシュレット付トイレ」は、日々の生活を快適にしてくれます。いつも綺麗に清潔に!
【オートバスシステム】
浴室のお湯張り、温度調整などを、キッチンなど浴室以外からでも操作できるシステムです。
担当スタッフより

- 米山 朋之 課長
- 三鷹市立東台小学校まで徒歩約8分! 三鷹市立第五中学校まで徒歩約19分! 三鷹中原幼稚園まで徒歩約4分!
実際にこちらの物件を見学したい!という方はお気軽にお電話ください!
フリーダイヤル「0120-40-6622」お待ちしております!
各棟情報
物件詳細情報
物件No.20000446032-001
| 所在地 | 東京都三鷹市中原4丁目 | ||
|---|---|---|---|
| 交通 | 京王線「調布」駅バス18分 バス停「上ノ原小学校」停歩3分 中央線「三鷹」駅バス20分 バス停「深大寺市営住宅」停歩8分 京王線「つつじヶ丘」駅徒歩20分 |
||
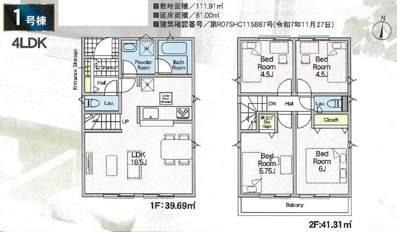
| 間取 | 4LDK (LDK16.5帖、洋室6.5帖、洋室5.75帖、洋室4.5帖、洋室4.5帖) | ||
| 土地面積 | 111.91m² | ||
| 建物面積 | 81m² | ||
| 販売戸数 | 2戸 | 総戸数 | 全2戸 |
| 構造・規模 | 木造 2階建て | 築年・入居 | 2026年3月 |
| 建物現況 | 完成済 | 建築確認番号 | 第R07SHC115887号 |
| 駐車スペース | 1台(カースペース) 料金:無料 | 引渡時期 | 即引渡可 |
| 国土法届出 | 不要 | 地目 | 宅地 |
| 用途地域 | 第一種低層住居専用地域 | 建ぺい率 | 40% |
| 容積率 | 80% | 都市計画 | 市街化区域 |
| 権利種類 | 所有権 | 接道 | 北側4M道路に接道 |
| 小学校区 | 三鷹市立東台小学校(640m) | 中学校区 | 三鷹市立第五中学校(1520m) |
| 取引態様 | 媒介 | ||
| 設備 | 本下水 東京電力・都市ガス・公営水道・公共下水 |
||
| 備考・制限等 | ☆住設あんしんサポート 対応物件☆ 最長10年間何度でも利用可能です!! 住宅ローンのご相談も随時受付中です。どのくらいの物件が購入できるのか。 内覧したい物件は購入できるのか。月々のローンはいくらくらいになるのかなど、お気軽にご相談ください♪ ご来店後は商談スペースから見える場所にキッズスペースを用意しております♪ お子様と一緒にご来店ください♪ |
||
こだわり項目
- ※価格は物件の代金総額を表示しており、消費税が課税される場合は税込み価格です。(1,000円未満は切り上げ。)
税率は引き渡し時期により異なりますので、各物件の詳細につきましてはお問い合わせください。 - ※敷地権利が借地権のものは価格に権利金を含みます。
- ※制作中に内容が変更される場合もありますので、あらかじめご了承ください。
- ※購入の前には物件内容や契約条件についてご自身で十分な確認をしていただくようにお願いいたします。
- ※完成予想図はいずれも外構、植栽、外観等実際のものとは多少異なることがあります。
- ※CG合成の画像の場合、実際とは多少異なる場合があります。
周辺地図
周辺施設一覧
- ショッピングセンター
- スーパー
- コンビニ
- ドラッグストア
- ホームセンター
- 飲食店
- その他店舗
- 商店街
- 大学
- 専門学校
- 高校・高専
- 中学校
- 小学校
- 保育園
- 幼稚園
- 公民館・児童館
- 病院
- 郵便局
- 役所
- 図書館
- 金融機関
- 警察・消防
- 趣味・娯楽施設
- 公園・運動施設
- 周辺の街並み
- 駅
- その他
- Saikyo Group トップ
- 新築一戸建てをエリアから探す
- 三鷹市
- 中原
- 1号棟 三鷹市中原4丁目 新築分譲住宅 全2棟
































