- Saikyo Group トップ
- 新築一戸建てをエリアから探す
- 立川市
- 砂川町
- 1号棟 立川市砂川町7丁目 新築分譲住宅 全3棟
1号棟 立川市砂川町7丁目 新築分譲住宅 全3棟
情報更新日:2026/04/27 次回更新予定日:2026/05/11
所在地東京都立川市砂川町7丁目[周辺地図]
交 通西武拝島線「武蔵砂川」駅徒歩19分





POINT1 キッチンには便利な自動食洗機が標準装備
POINT2 様々な税制上の恩恵のある長期優良住宅
POINT3 子育てに適した閑静な住宅地
すべての画像
風通しや採光にも気を配った設計のお家は、快適な住環境をお約束します。■立川市砂川町7 新築一戸建て■
プライベートな時間も、ご家族とくつろぐ時間も充実している「ずっと住み続ける家」を実現した新築住宅です。 ■立川市砂川町7 新築一戸建て■
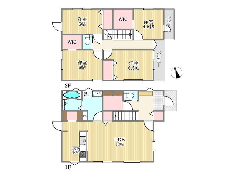
間取り図■立川市砂川町7 新築一戸建て■
オープンでのびやかな空間を生み出すこだわりの「広がり」と「ゆとり」。家族と過ごす時間を大切にした住空間です。※家具等はCG加工しております。■立川市砂川町7 新築一戸建て■
キッチンからリビング全体を見渡せるので、小さなお子様がいらしても様子を見ながら家事ができますね。■立川市砂川町7 新築一戸建て■
清潔なパウダールームは身だしなみチェックや肌のお手入れに最適です。収納もあり、スッキリと見映えの良い空間に拵えました。時間に余裕とゆとりを持たせます。 ■立川市砂川町7 新築一戸建て■
一日の疲れを癒しながら、お子様と一緒にバスタイムも楽しめる清潔感あふれる浴室です。浴室は換気・乾燥・暖房機能付きなので、雨の日のお洗濯や寒い冬でも1年中快適です。 ■立川市砂川町7 新築一戸建て■
大きな窓からはお陽さまの光や爽やかな風をたっぷり取り込めます。室内はいつも明るい印象なので気持ちの良い朝を迎えられます。毎日の生活も明るくなりそう。※家具等はCG加工しております。■立川市砂川町7 新築一戸建て■
ウォーク・イン・クローゼット完備の充実した収納スペースでいつもすっきりと整理整頓! ■立川市砂川町7 新築一戸建て■
区画図■立川市砂川町7 新築一戸建て■
玄関は清潔感のある空間にしたいもの。ご家族が多いご家庭にはとても便利なたっぷり収納できるシューズボックス付きです。 ■立川市砂川町7 新築一戸建て■
陽当りの良いバルコニー。心地よい風が吹き込み洗濯物だけでなく、お布団もふっかふかです。 ■立川市砂川町7 新築一戸建て■
カースペースはコンクリート仕上げ。雨の日でも足元を気にすることなく駐車できます。 ■立川市砂川町7 新築一戸建て■
前面道路■立川市砂川町7 新築一戸建て■
前面道路■立川市砂川町7 新築一戸建て■
リビング■立川市砂川町7 新築一戸建て■
リビング■立川市砂川町7 新築一戸建て■
リビングダイニング■立川市砂川町7 新築一戸建て■
ダイニング■立川市砂川町7 新築一戸建て■
ダイニング■立川市砂川町7 新築一戸建て■
ダイニングキッチン■立川市砂川町7 新築一戸建て■
キッチン■立川市砂川町7 新築一戸建て■
キッチン■立川市砂川町7 新築一戸建て■
洗面所■立川市砂川町7 新築一戸建て■
ランドリースペース■立川市砂川町7 新築一戸建て■
トイレ■立川市砂川町7 新築一戸建て■
寝室■立川市砂川町7 新築一戸建て■
子供部屋■立川市砂川町7 新築一戸建て■
収納■立川市砂川町7 新築一戸建て■
TVモニター付きインターホン■立川市砂川町7 新築一戸建て■
玄関■立川市砂川町7 新築一戸建て■
バルコニー■立川市砂川町7 新築一戸建て■
担当スタッフより

- 藤田 春樹
- 立川市立柏小学校まで徒歩約19分! 立川第四中学校まで徒歩約32分!
保育所アレグロバンビーノまで徒歩約12分!
☆当社では現地見学会を毎日開催中!【営業時間:8時30分~19時】
当日のご見学をご希望される場合はお電話が便利!
インターネット予約でいつでもご見学可能!
☆中央線「立川駅」北口から徒歩10分!
キッズスペース完備でお子様連れでもご安心。
提携駐車場が目の前にございますのでお車でのご来店も可能!
◆Saikyo Homeの安心サポート◆
1】ファイナンシャルプランナー個別相談
今後に大切な資金のご相談をFPが無料でご相談お受け致します!
2】オンラインによる接客・見学(実績多くございます)
zoom・LINE・facetimeなど様々なツールで可能!
3】内見時のご送迎(営業車)も快く承ります。
※ワゴン車・チャイルドシートも完備!
また、弊社ではお客様一人一人に合わせ大手銀行から地方銀行
ネット銀行など幅広くご紹介可能です!
各棟情報
物件詳細情報
物件No.20000445751-001
| 所在地 | 東京都立川市砂川町7丁目 | ||
|---|---|---|---|
| 交通 | 西武拝島線「武蔵砂川」駅徒歩19分 多摩モノレール「玉川上水」駅徒歩20分 多摩モノレール「桜街道」駅徒歩20分 |
||
| 間取 | 4LDK | ||
| 土地面積 | 144.16m² 公簿 | ||
| 建物面積 | 109.3m² | ||
| 販売戸数 | 1戸 | 総戸数 | 全3戸 |
| 構造・規模 | 木造 2階建て | 築年・入居 | 2026年4月上旬 |
| バルコニー | 東向き | 建物現況 | 建築中 |
| 建築確認番号 | 第25UDI1W建10554号 | 駐車スペース | 2台以上(カースペース) |
| 引渡時期 | 期日指定有(2026年4月中旬) | 国土法届出 | 不要 |
| 地目 | 宅地 | 用途地域 | 第一種低層住居専用地域 |
| 建ぺい率 | 40% | 容積率 | 80% |
| 都市計画 | 市街化区域 | 権利種類 | 所有権 |
| 接道 | 東側4.5M私道に接道 | 小学校区 | 立川市立柏小学校(1540m) |
| 中学校区 | 立川市立立川第四中学校(2560m) | 取引態様 | 媒介 |
| 設備 | 本下水 東京電力・都市ガス・公営水道・公共下水 |
||
| 備考・制限等 | ☆住設あんしんサポート 対応物件☆ 最長10年間何度でも利用可能です!! 住宅ローンのご相談も随時受付中です。どのくらいの物件が購入できるのか。 内覧したい物件は購入できるのか。月々のローンはいくらくらいになるのかなど、お気軽にご相談ください! ご来店後は商談スペースから見える場所にキッズスペースを用意しております! お子様と一緒にご来店ください! |
||
こだわり項目
- ※価格は物件の代金総額を表示しており、消費税が課税される場合は税込み価格です。(1,000円未満は切り上げ。)
税率は引き渡し時期により異なりますので、各物件の詳細につきましてはお問い合わせください。 - ※敷地権利が借地権のものは価格に権利金を含みます。
- ※制作中に内容が変更される場合もありますので、あらかじめご了承ください。
- ※購入の前には物件内容や契約条件についてご自身で十分な確認をしていただくようにお願いいたします。
- ※完成予想図はいずれも外構、植栽、外観等実際のものとは多少異なることがあります。
- ※CG合成の画像の場合、実際とは多少異なる場合があります。
周辺地図
周辺施設一覧
- ショッピングセンター
- スーパー
- コンビニ
- ドラッグストア
- ホームセンター
- 飲食店
- その他店舗
- 商店街
- 大学
- 専門学校
- 高校・高専
- 中学校
- 小学校
- 保育園
- 幼稚園
- 公民館・児童館
- 病院
- 郵便局
- 役所
- 図書館
- 金融機関
- 警察・消防
- 趣味・娯楽施設
- 公園・運動施設
- 周辺の街並み
- 駅
- その他
- Saikyo Group トップ
- 新築一戸建てをエリアから探す
- 立川市
- 砂川町
- 1号棟 立川市砂川町7丁目 新築分譲住宅 全3棟












