- Saikyo Group トップ
- 新築一戸建てをエリアから探す
- 武蔵野市
- 関前
- 武蔵野市関前2丁目 新築分譲住宅 全1棟
武蔵野市関前2丁目 新築分譲住宅 全1棟
情報更新日:2026/04/13 次回更新予定日:2026/04/27
所在地東京都武蔵野市関前2丁目[周辺地図]
交 通中央線「武蔵境」駅バス10分 停歩9分





◆POINT1◆ 敷地面積ゆとりの30坪超!駐車2台可能!ZEH水準の省エネ住宅!
◆POINT2◆ LDKゆとりの15帖!収納付きの居室が3部屋!7.25帖の洋室にはWIC付き♪
◆POINT3◆ リビング南側にウッドデッキのある邸宅!リビングには床暖房完備!
すべての画像
JR中央線「武蔵境」駅、「三鷹」駅、西武新宿線「田無」駅よりバス便ご利用いただけます♪2026年4月完成予定・同施工のモデルハウスご案内可能です!
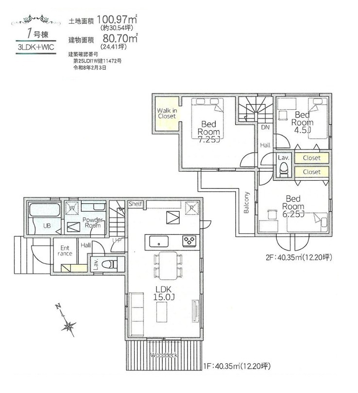
間取り図
区画図
住宅性能表示(建設・設計)W取得物件!建物の劣化軽減や構造の安定、耐震性などに優れた確かな品質の住まいです!
LDKゆとりの15帖!収納付きの居室が3部屋!7.25帖の洋室にはWIC付き♪断熱等級6の高断熱住宅!
小学校まで徒歩約1分、中学校まで徒歩約5分でお子様が無理なく通える距離です。保育園や幼稚園も近くに多数あり、子育てファミリーには嬉しい環境です!
スーパーやコンビニ、ドラッグストアが徒歩10分圏内に揃い生活環境良好です!急なお買い物も安心です♪
交通量の少ない前面道路ですので、小さなお子様がおられるご家庭でも安心してお住まいいただけます。
前面道路、幅員がございますので、駐車もスムーズに行えます!駐車が少し苦手なママさんでも安心ですね♪
【施工例】開放感と採光にこだわった広々としたLDKです。陽光いっぱいの空間で家族団らんの時間も増えそうですね!
【施工例】家族が集い、楽しい会話と美味しいごはん。何気ない家族団らんの時間が幸せに感じられる、そんな空間になりそうです。
【施工例】リビングには床暖房を完備。冬でもポカポカ快適空間!空気を汚さずに室内を快適な温度に保ちます。
【施工例】リビングにいる家族とコミュニケーションをとりながら作業が出来る人気のカウンターキッチン。お子様がリビングにいても目が届くので安心です。
【施工例】一日の疲れを癒してくれる一坪タイプの広々バスルーム♪雨の日のお洗濯にも大活躍な浴室暖房乾燥機付きです!
【施工例】三面鏡付きの洗面化粧台を完備。収納スペースも十分ございますので、ドライヤーなどすっきりと片付きます♪
【施工例】1Fと2Fにトイレがございますので、朝の忙しい時間帯も安心です。毎日使う場所だからこそ、綺麗に清潔にこだわりたいですね♪
【施工例】玄関には収納力に優れたシューズボックスがございますので、ご家族みんなの靴が十分入ります!
【施工例】2面採光で明るく風通しも良好です!天気の良い日は是非窓を開けて空気の入れ替えをしてみるのはいかがでしょうか♪
【施工例】バルコニーに出入りの出来る洋室は、たくさん陽光が差し込む明るい空間です。朝も気持ちよく起きられそうです♪
【施工例】窓と収納のある居室が3部屋ございますので、プライベートを分けてのんびりお寛ぎいただけます♪
【施工例】各居室に収納を設けておりますので、衣類の他にもカバンや小物など何でも収納して、居室の全空間を有効活用できます♪
【施工例】7.25帖の洋室にはWICがございます。たっぷり収納ができるWICは衣替え不要で、すぐに使え、片付け上手に!
【施工例】「3口ガスコンロシステム」はたくさんの料理が同時に作れて便利な上、凹凸が少ないフラットトップなのでお掃除も楽々です。
【施工例】「浄水器」をスリムに内蔵したハンドシャワー式の水栓金具です。シンクもスッキリ!
担当スタッフより

- 米山 朋之 課長
- 武蔵野市立関前南小学校まで徒歩約1分! 武蔵野市立第五中学校まで徒歩約5分! 武蔵野東第二幼稚園まで徒歩約2分!
実際にこちらの物件を見学したい!という方はお気軽にお電話ください!
フリーダイヤル「0120-40-6622」お待ちしております!
物件詳細情報
物件No.20000443122
| 所在地 | 東京都武蔵野市関前2丁目 | ||
|---|---|---|---|
| 交通 | 中央線「武蔵境」駅バス10分 バス停「関前四丁目」停歩9分 中央線「三鷹」駅バス7分 バス停「八幡町三丁目」停歩8分 西武新宿線「田無」駅バス6分 バス停「関前四丁目」停歩9分 |
||
| 間取 | 3LDK (LDK15.0帖、洋室7.25帖、洋室6.25帖、洋室4.5帖) | ||
| 土地面積 | 100.97m² | ||
| 建物面積 | 80.7m² | ||
| 販売戸数 | 1戸 | 総戸数 | 全1戸 |
| 構造・規模 | 木造 2階建て | 築年・入居 | 2026年4月下旬 |
| バルコニー | 南向き | 建築確認番号 | 第25UDI1W建11472号 |
| 駐車スペース | 2台可(カースペース) 料金:無料 | 引渡時期 | 期日指定有(2026年4月下旬) |
| 国土法届出 | 不要 | 地目 | 宅地 |
| 用途地域 | 第一種低層住居専用地域 | 建ぺい率 | 40% |
| 容積率 | 80% | 都市計画 | 市街化区域 |
| 権利種類 | 所有権 | 接道 | 西側5M公道に接道 |
| 小学校区 | 武蔵野市立関前南小学校(50m) | 中学校区 | 武蔵野市立第五中学校(400m) |
| 取引態様 | 媒介 | ||
| 設備 | 本下水 東京電力・都市ガス・公営水道・公共下水 |
||
| 省エネ性能表示 | エネルギー消費性能:★★★★ 断熱性能:6段階 目安光熱費:約15万円/年 |
||
| その他制限事項 | 宅地造成工事規制区域、高度地区、日影制限有 | ||
| 備考・制限等 | ☆住設あんしんサポート 対応物件☆ 最長10年間何度でも利用可能です!! 住宅ローンのご相談も随時受付中です。どのくらいの物件が購入できるのか。 内覧したい物件は購入できるのか。月々のローンはいくらくらいになるのかなど、お気軽にご相談ください♪ ご来店後は商談スペースから見える場所にキッズスペースを用意しております♪ お子様と一緒にご来店ください♪ |
||
こだわり項目
- ※価格は物件の代金総額を表示しており、消費税が課税される場合は税込み価格です。(1,000円未満は切り上げ。)
税率は引き渡し時期により異なりますので、各物件の詳細につきましてはお問い合わせください。 - ※敷地権利が借地権のものは価格に権利金を含みます。
- ※制作中に内容が変更される場合もありますので、あらかじめご了承ください。
- ※購入の前には物件内容や契約条件についてご自身で十分な確認をしていただくようにお願いいたします。
- ※完成予想図はいずれも外構、植栽、外観等実際のものとは多少異なることがあります。
- ※CG合成の画像の場合、実際とは多少異なる場合があります。
周辺地図
周辺施設一覧
- ショッピングセンター
- スーパー
- コンビニ
- ドラッグストア
- ホームセンター
- 飲食店
- その他店舗
- 商店街
- 大学
- 専門学校
- 高校・高専
- 中学校
- 小学校
- 保育園
- 幼稚園
- 公民館・児童館
- 病院
- 郵便局
- 役所
- 図書館
- 金融機関
- 警察・消防
- 趣味・娯楽施設
- 公園・運動施設
- 周辺の街並み
- 駅
- その他
- Saikyo Group トップ
- 新築一戸建てをエリアから探す
- 武蔵野市
- 関前
- 武蔵野市関前2丁目 新築分譲住宅 全1棟





























