- Saikyo Group トップ
- 新築一戸建てをエリアから探す
- 三鷹市
- 上連雀
- 三鷹市上連雀7丁目 新築分譲住宅 全4棟
三鷹市上連雀7丁目 新築分譲住宅 全4棟
情報更新日:2026/03/08 次回更新予定日:2026/03/22 取引条件有効期限:2026/03/22
所在地東京都三鷹市上連雀7丁目[周辺地図]
交 通中央線「三鷹」駅徒歩22分





POINT1 電動シャッターや宅配ボックスなど嬉しい設備が満載です!
POINT2 SIC付きで玄関周りがすっきり片付きます!
POINT3 カウンターキッチンには浄水器・食洗機付き!
すべての画像
住みやすさと利便性を兼ね備えた立地。高い住宅性能を備えた安心で暮らしやすい住まいです。■三鷹市上連雀7 新築一戸建■
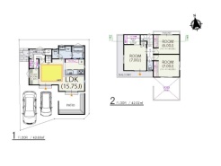
C号棟間取り図■三鷹市上連雀7 新築一戸建■
緑豊かで閑静な住宅街は子育てにはピッタリです。■三鷹市上連雀7 新築一戸建■
安心してお住まいいただける設備、仕様。日々の暮らしをより快適にお過ごしいただけます。 ■三鷹市上連雀7 新築一戸建■
浄水器や浴室乾燥機など、毎日の生活を快適にする設備も充実しています。■三鷹市上連雀7 新築一戸建■
周囲にはスーパーをはじめとした買い物施設も揃っています。住みやすさと利便性を兼ね備えた環境です。 ■三鷹市上連雀7 新築一戸建■
区画図■三鷹市上連雀7 新築一戸建■
施工例
担当スタッフより
- 物件担当より
- 三鷹市立第七小学校まで徒歩約2分!
三鷹市立第四中学校まで徒歩約10分!
三鷹市立山中保育園まで徒歩約6分!
【営業時間9:00~19:00】(水曜定休)
上記時間はお電話が繋がりやすくなっております。ぜひお気軽にご連絡下さい!
【Saikyo Homeのご安心サポート】
◆現地見学会(事前に予約お願いします。)◆
毎日ご見学・ご相談可能です。平日、夜間も相談可能です。(9:00~21:00)
自宅送迎、最寄り駅待ち合わせも可能ですのでご相談下さい。
◆ファイナンシャルプランナー個別相談◆
住宅購入に関わるお金の問題についてファイナンシャルプランナー
が無料でお客様のご相談をお受けします。
◆オンライン接客・内見◆
店舗へ行くことなくパソコンやスマートフォン上のビデオ通話で
実際に内覧して頂く事が可能です。
LINE通話・Zoom・face timeなどがご対応可能です。
◆住設あんしんサポート◆
最長10年間何度でも新品交換含め無料修理が
窓口一本化でスムーズに行える弊社ならではのサービスです。
各棟情報
物件詳細情報
物件No.20000441565
| 所在地 | 東京都三鷹市上連雀7丁目 | ||
|---|---|---|---|
| 交通 | 中央線「三鷹」駅徒歩22分 中央線「武蔵境」駅徒歩25分 西武多摩川線「新小金井」駅徒歩37分 |
||
| 間取 | 3LDK | ||
| 土地面積 | 110.05m² | ||
| 建物面積 | 85.7m² | ||
| 販売戸数 | 1戸 | 総戸数 | 全4戸 |
| 構造・規模 | 木造 2階建て | 築年・入居 | 2026年4月 |
| 建築確認番号 | 第25UDI1T建03612号 | 駐車スペース | 2台(カースペース) |
| 引渡時期 | 相談 | 国土法届出 | 不要 |
| 地目 | 宅地 | 用途地域 | 第一種低層住居専用地域 |
| 建ぺい率 | 40% | 容積率 | 80% |
| 都市計画 | 市街化区域 | 権利種類 | 所有権 |
| 接道 | 4.5M私道に接道 | 小学校区 | 三鷹市立第七小学校(150m) |
| 中学校区 | 三鷹市立第四中学校(780m) | 取引態様 | 媒介 |
| 設備 | 本下水 東京電力・都市ガス・公営水道・公共下水 |
||
| 備考・制限等 | ☆住設あんしんサポート 対応物件☆ 最長10年間何度でも利用可能です!! 住宅ローンのご相談も随時受付中です。どのくらいの物件が購入できるのか。 内覧したい物件は購入できるのか。月々のローンはいくらくらいになるのかなど、お気軽にご相談ください! ご来店後は商談スペースから見える場所にキッズスペースを用意しております! お子様と一緒にご来店ください! |
||
こだわり項目
- ※価格は物件の代金総額を表示しており、消費税が課税される場合は税込み価格です。(1,000円未満は切り上げ。)
税率は引き渡し時期により異なりますので、各物件の詳細につきましてはお問い合わせください。 - ※敷地権利が借地権のものは価格に権利金を含みます。
- ※制作中に内容が変更される場合もありますので、あらかじめご了承ください。
- ※購入の前には物件内容や契約条件についてご自身で十分な確認をしていただくようにお願いいたします。
- ※完成予想図はいずれも外構、植栽、外観等実際のものとは多少異なることがあります。
- ※CG合成の画像の場合、実際とは多少異なる場合があります。
周辺地図
周辺施設一覧
- ショッピングセンター
- スーパー
- コンビニ
- ドラッグストア
- ホームセンター
- 飲食店
- その他店舗
- 商店街
- 大学
- 専門学校
- 高校・高専
- 中学校
- 小学校
- 保育園
- 幼稚園
- 公民館・児童館
- 病院
- 郵便局
- 役所
- 図書館
- 金融機関
- 警察・消防
- 趣味・娯楽施設
- 公園・運動施設
- 周辺の街並み
- 駅
- その他
- Saikyo Group トップ
- 新築一戸建てをエリアから探す
- 三鷹市
- 上連雀
- 三鷹市上連雀7丁目 新築分譲住宅 全4棟








