- Saikyo Group トップ
- 新築一戸建てをエリアから探す
- 国立市
- 西
- 2号棟 国立市西2丁目 新築分譲住宅 全3棟
2号棟 国立市西2丁目 新築分譲住宅 全3棟
情報更新日:2026/04/13 次回更新予定日:2026/04/27
所在地東京都国立市西2丁目[周辺地図]
交 通南武線「西国立」駅徒歩11分





・耐震等級3の家!
・食洗機等欲しい設備も満載です!
すべての画像
2駅2路線利用可能!利便性の高い交通アクセスが魅力的です。 完成済みの物件です。実際のお部屋をご見学いただけます。ぜひお問い合わせください ■国立市西2 新築一戸建て■
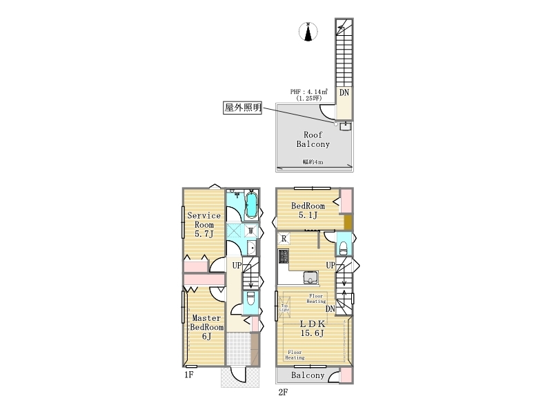
2号棟間取り■国立市西2 新築一戸建て■
2階リビングのため、日当たり良好!家族が集まるLDKは暖かく快適な空間をご用意しました! ■国立市西2 新築一戸建て■
キッチン内での作業動線が短く、作業スペースが広くなるL字キッチン。小さなお子様がいるご家庭でも料理をしながらリビングの様子が伺える安心設計! ■国立市西2 新築一戸建て■
大きな三面鏡がついた洗面化粧台。鏡の裏にも収納があり洗面台がすっきりと片付きます。朝の身支度にも大変便利です。 ■国立市西2 新築一戸建て■
一日の疲れを癒すための心地よいバスタイムを演出する浴室はゆとりあるサイズを採用。浴室乾燥機付き! ■国立市西2 新築一戸建て■
シンプルなアクセントクロスがおしゃれな空間を演出してくれます。 ■国立市西2 新築一戸建て■
居室に収納を完備しておりますので、居室の全空間を有効活用出来ます。自分好みのお部屋で、ゆったりお寛ぎ頂けます。 ■国立市西2 新築一戸建て■
お出かけ前の身だしなみチェックが出来る姿見鏡付のシューズボックスに加えクローゼットも完備された玄関です。 ■国立市西2 新築一戸建て■
青空を感じる屋上バルコニー。気分もリフレッシュされます。 ■国立市西2 新築一戸建て■
カースペースはコンクリート仕上げ。雨の日も足元は気になりません! ■国立市西2 新築一戸建て■
前面道路■国立市西2 新築一戸建て■
リビング■国立市西2 新築一戸建て■
リビングダイニング■国立市西2 新築一戸建て■
リビングダイニング■国立市西2 新築一戸建て■
ダイニング■国立市西2 新築一戸建て■
ダイニングキッチン■国立市西2 新築一戸建て■
ダイニングキッチン■国立市西2 新築一戸建て■
キッチン■国立市西2 新築一戸建て■
洗面所■国立市西2 新築一戸建て■
トイレ■国立市西2 新築一戸建て■
屋外収納■国立市西2 新築一戸建て■
寝室■国立市西2 新築一戸建て■
子供部屋■国立市西2 新築一戸建て■
玄関収納■国立市西2 新築一戸建て■
インターフォン■国立市西2 新築一戸建て■
玄関■国立市西2 新築一戸建て■
眺望■国立市西2 新築一戸建て■
2階バルコニー■国立市西2 新築一戸建て■
キッチン■国立市西2 新築一戸建て■
キッチン■国立市西2 新築一戸建て■
浴室乾燥機■国立市西2 新築一戸建て■
ウォシュレット■国立市西2 新築一戸建て■
宅配ボックス■国立市西2 新築一戸建て■
ポスト■国立市西2 新築一戸建て■
2階リビングのため、日当たり良好!家族が集まるLDKは暖かく快適な空間をご用意しました! ■国立市西2 新築一戸建て■
収納力豊富で見せるキッチンの実現が可能に。いつもキレイにしておきたくなるキッチンです。 ■国立市西2 新築一戸建て■
大きな三面鏡がついた洗面化粧台。鏡の裏にも収納があり洗面台がすっきりと片付きます。朝の身支度にも大変便利です。 ■国立市西2 新築一戸建て■
一日の疲れを癒すための心地よいバスタイムを演出する浴室はゆとりあるサイズを採用。浴室乾燥機付き! ■国立市西2 新築一戸建て■
シンプルなアクセントクロスがおしゃれな空間を演出してくれます。※家具等はCG加工しております。 ■国立市西2 新築一戸建て■
居室に収納を完備しておりますので、居室の全空間を有効活用出来ます。自分好みのお部屋で、ゆったりお寛ぎ頂けます。 ■国立市西2 新築一戸建て■
区画図■国立市西2 新築一戸建て■
お出かけ前の身だしなみチェックが出来る姿見鏡付のシューズボックスに加えクローゼットも完備された玄関です。 ■国立市西2 新築一戸建て■
青空を感じる屋上バルコニー。気分もリフレッシュされます。 ■国立市西2 新築一戸建て■
カースペースはコンクリート仕上げ。雨の日も足元は気になりません! ■国立市西2 新築一戸建て■
前面道路■国立市西2 新築一戸建て■
リビング■国立市西2 新築一戸建て■
リビングダイニング■国立市西2 新築一戸建て■
ダイニング■国立市西2 新築一戸建て■
ダイニング■国立市西2 新築一戸建て■
ダイニングキッチン■国立市西2 新築一戸建て■
ダイニングキッチン■国立市西2 新築一戸建て■
キッチン■国立市西2 新築一戸建て■
洗面所■国立市西2 新築一戸建て■
トイレ■国立市西2 新築一戸建て■
寝室■国立市西2 新築一戸建て■
子供部屋■国立市西2 新築一戸建て■
玄関収納■国立市西2 新築一戸建て■
インターフォン■国立市西2 新築一戸建て■
玄関■国立市西2 新築一戸建て■
眺望■国立市西2 新築一戸建て■
眺望■国立市西2 新築一戸建て■
キッチン■国立市西2 新築一戸建て■
キッチン■国立市西2 新築一戸建て■
担当スタッフより

- 内堀 兼斗
- 国立市立第二小学校まで徒歩約4分!
国立市立第二中学校まで徒歩約12分!
羽衣保育園まで徒歩5分! 国立ふたば幼稚園まで徒歩約4分!
【営業時間9:00~19:00】(水曜定休)
上記時間はお電話が繋がりやすくなっております。ぜひお気軽にご連絡下さい!
【Saikyo Homeのご安心サポート】
◆現地見学会(事前に予約お願いします。)◆
毎日ご見学・ご相談可能です。平日、夜間も相談可能です。(9:00~21:00)
自宅送迎、最寄り駅待ち合わせも可能ですのでご相談下さい。
◆ファイナンシャルプランナー個別相談◆
住宅購入に関わるお金の問題についてファイナンシャルプランナー
が無料でお客様のご相談をお受けします。
◆オンライン接客・内見◆
店舗へ行くことなくパソコンやスマートフォン上のビデオ通話で
実際に内覧して頂く事が可能です。
LINE通話・Zoom・face timeなどがご対応可能です。
◆住設あんしんサポート◆
最長10年間何度でも新品交換含め無料修理が
窓口一本化でスムーズに行える弊社ならではのサービスです。
各棟情報
物件詳細情報
物件No.20000441563-001
| 所在地 | 東京都国立市西2丁目 | ||
|---|---|---|---|
| 交通 | 南武線「西国立」駅徒歩11分 中央線「国立」駅徒歩19分 南武線「矢川」駅徒歩18分 |
||
| 間取 | 2SLDK | ||
| 土地面積 | 100.5m² | ||
| 建物面積 | 83.38m² | ||
| 販売戸数 | 2戸 | 総戸数 | 全3戸 |
| 構造・規模 | 木造 2階建て | 築年・入居 | 2025年10月 |
| バルコニー | 南向き | 駐車スペース | 1台(カースペース) |
| 引渡時期 | 即引渡可 | 国土法届出 | 不要 |
| 地目 | 宅地 | 用途地域 | 第一種低層住居専用地域 |
| 建ぺい率 | 50% | 容積率 | 100% |
| 都市計画 | 市街化区域 | 権利種類 | 所有権 |
| 接道 | 南側5.4M道路に接道 | 小学校区 | 国立市立第二小学校(280m) |
| 中学校区 | 国立市立第二中学校(950m) | 取引態様 | 媒介 |
| 設備 | 本下水 東京電力・都市ガス・公営水道・公共下水 |
||
| 備考・制限等 | ☆住設あんしんサポート 対応物件☆ 最長10年間何度でも利用可能です!! 住宅ローンのご相談も随時受付中です。どのくらいの物件が購入できるのか。 内覧したい物件は購入できるのか。月々のローンはいくらくらいになるのかなど、お気軽にご相談ください! ご来店後は商談スペースから見える場所にキッズスペースを用意しております! お子様と一緒にご来店ください! |
||
こだわり項目
- ※価格は物件の代金総額を表示しており、消費税が課税される場合は税込み価格です。(1,000円未満は切り上げ。)
税率は引き渡し時期により異なりますので、各物件の詳細につきましてはお問い合わせください。 - ※敷地権利が借地権のものは価格に権利金を含みます。
- ※制作中に内容が変更される場合もありますので、あらかじめご了承ください。
- ※購入の前には物件内容や契約条件についてご自身で十分な確認をしていただくようにお願いいたします。
- ※完成予想図はいずれも外構、植栽、外観等実際のものとは多少異なることがあります。
- ※CG合成の画像の場合、実際とは多少異なる場合があります。
周辺地図
周辺施設一覧
- ショッピングセンター
- スーパー
- コンビニ
- ドラッグストア
- ホームセンター
- 飲食店
- その他店舗
- 商店街
- 大学
- 専門学校
- 高校・高専
- 中学校
- 小学校
- 保育園
- 幼稚園
- 公民館・児童館
- 病院
- 郵便局
- 役所
- 図書館
- 金融機関
- 警察・消防
- 趣味・娯楽施設
- 公園・運動施設
- 周辺の街並み
- 駅
- その他
- Saikyo Group トップ
- 新築一戸建てをエリアから探す
- 国立市
- 西
- 2号棟 国立市西2丁目 新築分譲住宅 全3棟

















































