- Saikyo Group トップ
- 新築一戸建てをエリアから探す
- 日野市
- 神明
- 日野市神明2丁目 新築分譲住宅 全1棟
日野市神明2丁目 新築分譲住宅 全1棟
情報更新日:2026/04/20 次回更新予定日:2026/05/04
所在地東京都日野市神明2丁目[周辺地図]
交 通中央線「日野」駅徒歩13分





POINT1 カースペースは2台駐車可能!(車種による)
POINT2 シューズインクローゼットを完備!
POINT3 小学校まで徒歩3分なのでお子様の負担も軽減!
すべての画像
スーパーやコンビニなど買い物施設が徒歩圏内。住みやすさと利便性を兼ね備えた環境です。 ■日野市神明2丁目 新築戸建て■
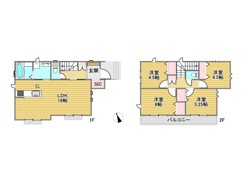
間取り図■日野市神明2丁目 新築戸建て■
18帖の広々LDK。南に面した窓からは暖かな陽光がたっぷり差し込みます。また通気性にも優れた設計です。 ■日野市神明2丁目 新築戸建て■
収納力のあるシステムキッチンには浄水器を完備。お手入れのしやすさや機能性、デザイン性に優れています。 ■日野市神明2丁目 新築戸建て■
大きな三面鏡がついた洗面化粧台。鏡の裏にも収納があり洗面台がすっきりと片付きます。朝の身支度にも大変便利です。 ■日野市神明2丁目 新築戸建て■
重厚感とはお子さんや年配の方でも安心なバリアフリー仕様。ヒートショックを防止する暖房換気乾燥機も標準仕様。 ■日野市神明2丁目 新築戸建て■
明るく開放感のある洋室。昼間は豊かな陽光が心地よく、夜はゆったりと落ち着いた空間に。 ■日野市神明2丁目 新築戸建て■
居室にはたっぷりの収納付き。洋服や荷物など仕分けができるので、お子様も整理整頓がしっかりできますね ■日野市神明2丁目 新築戸建て■
区画図■日野市神明2丁目 新築戸建て■
玄関脇にシューズインクローゼットがあると、季節ごとの靴の収納が上手にできるだけでなく、ベビーカーやスポーツ用品などの収納にも大変便利です。 ■日野市神明2丁目 新築戸建て■
洋室2部屋分に面しているので、お布団干しにも大変便利ですね。 ■日野市神明2丁目 新築戸建て■
2台停めることができる広々としたカースペースが嬉しいですね。(車種による) ■日野市神明2丁目 新築戸建て■
四季を通じて自然と触れ合えるスポットが周辺には盛りだくさん!■日野市神明2丁目 新築戸建て■
安心してお住まいいただける設備、仕様。日々の暮らしをより快適にお過ごしいただけます! ■日野市神明2丁目 新築戸建て■
リビング■日野市神明2丁目 新築戸建て■
リビングダイニング■日野市神明2丁目 新築戸建て■
リビングダイニング■日野市神明2丁目 新築戸建て■
ダイニング■日野市神明2丁目 新築戸建て■
ダイニング■日野市神明2丁目 新築戸建て■
ダイニングキッチン■日野市神明2丁目 新築戸建て■
ダイニングキッチン■日野市神明2丁目 新築戸建て■
キッチン■日野市神明2丁目 新築戸建て■
洗面所■日野市神明2丁目 新築戸建て■
ランドリースペース■日野市神明2丁目 新築戸建て■
トイレ■日野市神明2丁目 新築戸建て■
階段■日野市神明2丁目 新築戸建て■
子供部屋■日野市神明2丁目 新築戸建て■
寝室■日野市神明2丁目 新築戸建て■
シューズインクロゼット■日野市神明2丁目 新築戸建て■
インターフォン■日野市神明2丁目 新築戸建て■
玄関■日野市神明2丁目 新築戸建て■
眺望■日野市神明2丁目 新築戸建て■
担当スタッフより

- 樽井 龍
- 第七小学校まで徒歩約3分! 大坂上中学校まで徒歩約10分!
しせい太陽の子保育園まで徒歩約9分! 日野ひかり幼稚園まで徒歩約13分!
☆当社では現地見学会を毎日開催中!【営業時間:8時30分~19時】
当日のご見学をご希望される場合はお電話が便利!
インターネット予約でいつでもご見学可能!
☆中央線「立川駅」北口から徒歩10分!
キッズスペース完備でお子様連れでもご安心。
提携駐車場が目の前にございますのでお車でのご来店も可能!
◆Saikyo Homeの安心サポート◆
1】ファイナンシャルプランナー個別相談
今後に大切な資金のご相談をFPが無料でご相談お受け致します!
2】オンラインによる接客・見学(実績多くございます)
zoom・LINE・facetimeなど様々なツールで可能!
3】内見時のご送迎(営業車)も快く承ります。
※ワゴン車・チャイルドシートも完備!
また、弊社ではお客様一人一人に合わせ大手銀行から地方銀行
ネット銀行など幅広くご紹介可能です!
物件詳細情報
物件No.20000439752
| 所在地 | 東京都日野市神明2丁目 | ||
|---|---|---|---|
| 交通 | 中央線「日野」駅徒歩13分 中央線「豊田」駅徒歩25分 多摩モノレール「甲州街道」駅徒歩27分 |
||
| 間取 | 4LDK | ||
| 土地面積 | 115.36m² | ||
| 建物面積 | 92.73m² | ||
| 販売戸数 | 1戸 | 総戸数 | 全1戸 |
| 構造・規模 | 木造 2階建て | 築年・入居 | 2026年3月 |
| バルコニー | 南向き | 建築確認番号 | 第HPA-25-12696-1号 |
| 駐車スペース | あり(カースペース:並列) | 引渡時期 | 期日指定有(2026年3月) |
| 国土法届出 | 不要 | 地目 | 宅地 |
| 用途地域 | 第一種中高層住居専用地域 | 建ぺい率 | 60% |
| 容積率 | 200% | 都市計画 | 市街化区域 |
| 権利種類 | 所有権 | 接道 | 東側6M道路に接道 |
| 小学校区 | 日野市立日野第七小学校(220m) | 中学校区 | 日野市立大坂上中学校(790m) |
| 取引態様 | 媒介 | ||
| 設備 | 本下水 東京電力・都市ガス・公営水道・公共下水 |
||
| 備考・制限等 | ☆住設あんしんサポート 対応物件☆ 最長10年間何度でも利用可能です!! 住宅ローンのご相談も随時受付中です。どのくらいの物件が購入できるのか。 内覧したい物件は購入できるのか。月々のローンはいくらくらいになるのかなど、お気軽にご相談ください! ご来店後は商談スペースから見える場所にキッズスペースを用意しております! お子様と一緒にご来店ください! |
||
こだわり項目
- ※価格は物件の代金総額を表示しており、消費税が課税される場合は税込み価格です。(1,000円未満は切り上げ。)
税率は引き渡し時期により異なりますので、各物件の詳細につきましてはお問い合わせください。 - ※敷地権利が借地権のものは価格に権利金を含みます。
- ※制作中に内容が変更される場合もありますので、あらかじめご了承ください。
- ※購入の前には物件内容や契約条件についてご自身で十分な確認をしていただくようにお願いいたします。
- ※完成予想図はいずれも外構、植栽、外観等実際のものとは多少異なることがあります。
- ※CG合成の画像の場合、実際とは多少異なる場合があります。
周辺地図
周辺施設一覧
- ショッピングセンター
- スーパー
- コンビニ
- ドラッグストア
- ホームセンター
- 飲食店
- その他店舗
- 商店街
- 大学
- 専門学校
- 高校・高専
- 中学校
- 小学校
- 保育園
- 幼稚園
- 公民館・児童館
- 病院
- 郵便局
- 役所
- 図書館
- 金融機関
- 警察・消防
- 趣味・娯楽施設
- 公園・運動施設
- 周辺の街並み
- 駅
- その他
- Saikyo Group トップ
- 新築一戸建てをエリアから探す
- 日野市
- 神明
- 日野市神明2丁目 新築分譲住宅 全1棟






























