- Saikyo Group トップ
- 新築一戸建てをエリアから探す
- 八王子市
- 東浅川町
- 八王子市東浅川町 新築分譲住宅 全1棟
八王子市東浅川町 新築分譲住宅 全1棟
情報更新日:2026/04/20 次回更新予定日:2026/05/04
所在地東京都八王子市東浅川町[周辺地図]
交 通中央線「高尾」駅徒歩13分





POINT1 高尾の自然が身近な立地!
POINT2 LDKは18.75帖ゆとりの間取りです。
POINT3 駐車2台可でカーライフも充実です!
すべての画像
2路線3駅利用可能!利便性の高い交通アクセスが魅力的です。■八王子市東浅川町 新築一戸建て■
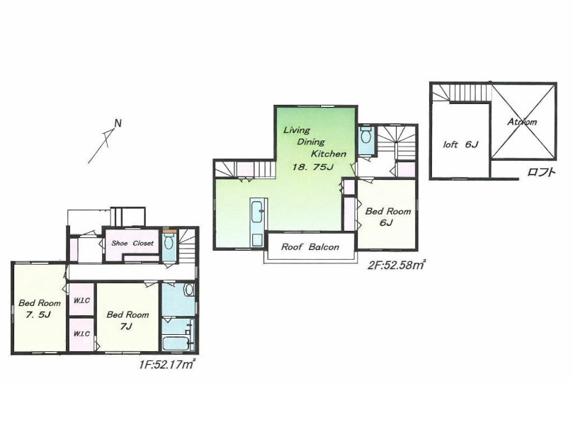
間取り図■八王子市東浅川町 新築一戸建て■
2階に設けたLDKはバルコニーからの自然光で満たされ、明るく開放感溢れる家族の寛ぎの場になります! ■八王子市東浅川町 新築一戸建て■
キッチンに立った位置から、リビングにいる家族に目線が届く見守りキッチン! ■八王子市東浅川町 新築一戸建て■
サニタリースペースには窓が備えられております。毎朝の身支度も、陽の光差し込む明るい空間で、快適にお使い頂けそうです。 ■八王子市東浅川町 新築一戸建て■
一日の疲れを癒しながら、お子様と一緒にバスタイムも楽しめる清潔感あふれる浴室です。浴室は換気・乾燥・暖房機能付きなので、雨の日のお洗濯や寒い冬でも1年中快適です。 ■八王子市東浅川町 新築一戸建て■
大きな窓からはお陽さまの光や爽やかな風をたっぷり取り込めます。室内はいつも明るい印象なので気持ちの良い朝を迎えられます。毎日の生活も明るくなりそう。 ■八王子市東浅川町 新築一戸建て■
ウォーク・イン・クローゼット完備の充実した収納スペースでいつもすっきりと整理整頓! ■八王子市東浅川町 新築一戸建て■
区画図■八王子市東浅川町 新築一戸建て■
玄関は清潔感のある空間にしたいもの。ご家族が多いご家庭にはとても便利なシューズ・イン・クローゼット付きです。 ■八王子市東浅川町 新築一戸建て■
陽当りの良いバルコニー。心地よい風が吹き込み洗濯物だけでなく、お布団もふっかふかです。 ■八王子市東浅川町 新築一戸建て■
カースペース2台利用可。通勤用、家庭用で分けて駐車できるので日々の生活も快適ですね。■八王子市東浅川町 新築一戸建て■
前面道路■八王子市東浅川町 新築一戸建て■
前面道路■八王子市東浅川町 新築一戸建て■
リビング■八王子市東浅川町 新築一戸建て■
リビング■八王子市東浅川町 新築一戸建て■
リビングダイニング■八王子市東浅川町 新築一戸建て■
ダイニング■八王子市東浅川町 新築一戸建て■
キッチン■八王子市東浅川町 新築一戸建て■
キッチン■八王子市東浅川町 新築一戸建て■
洗面所■八王子市東浅川町 新築一戸建て■
トイレ■八王子市東浅川町 新築一戸建て■
寝室■八王子市東浅川町 新築一戸建て■
子供部屋■八王子市東浅川町 新築一戸建て■
担当スタッフより

- 藤田 春樹
- 八王子市立東浅川小学校まで徒歩約25分! 八王子市立陵南中学校まで徒歩約14分!
敬愛保育園まで徒歩約1分!
☆当社では現地見学会を毎日開催中!【営業時間:8時30分~19時】
当日のご見学をご希望される場合はお電話が便利!
インターネット予約でいつでもご見学可能!
☆中央線「立川駅」北口から徒歩10分!
キッズスペース完備でお子様連れでもご安心。
提携駐車場が目の前にございますのでお車でのご来店も可能!
◆Saikyo Homeの安心サポート◆
1】ファイナンシャルプランナー個別相談
今後に大切な資金のご相談をFPが無料でご相談お受け致します!
2】オンラインによる接客・見学(実績多くございます)
zoom・LINE・facetimeなど様々なツールで可能!
3】内見時のご送迎(営業車)も快く承ります。
※ワゴン車・チャイルドシートも完備!
また、弊社ではお客様一人一人に合わせ大手銀行から地方銀行
ネット銀行など幅広くご紹介可能です!
物件詳細情報
物件No.20000438693
| 所在地 | 東京都八王子市東浅川町 | ||
|---|---|---|---|
| 交通 | 中央線「高尾」駅徒歩13分 京王高尾線「狭間」駅徒歩6分 中央線「西八王子」駅徒歩13分 |
||
| 間取 | 3LDK | ||
| 土地面積 | 142.98m² 公簿 | ||
| 建物面積 | 104.75m² | ||
| 販売戸数 | 1戸 | 総戸数 | 全1戸 |
| 構造・規模 | 木造 2階建て | 築年・入居 | 2025年12月下旬 |
| バルコニー | 南向き | 建築確認番号 | AI建築確認確認00-2500062号 |
| 駐車スペース | 2台(カースペース) | 引渡時期 | 相談 |
| 国土法届出 | 不要 | 地目 | 宅地 |
| 用途地域 | 第一種低層住居専用地域 | 建ぺい率 | 40% |
| 容積率 | 80% | 都市計画 | 市街化区域 |
| 権利種類 | 所有権 | 接道 | 北西側4M道路に接道 |
| 小学校区 | 八王子市立東浅川小学校(2010m) | 中学校区 | 八王子市立陵南中学校(1170m) |
| 取引態様 | 媒介 | ||
| 設備 | 本下水、個別LPG 東京電力・LPガス・公営水道・公共下水 |
||
| 備考・制限等 | ☆住設あんしんサポート 対応物件☆ 最長10年間何度でも利用可能です!! 住宅ローンのご相談も随時受付中です。どのくらいの物件が購入できるのか。 内覧したい物件は購入できるのか。月々のローンはいくらくらいになるのかなど、お気軽にご相談ください! ご来店後は商談スペースから見える場所にキッズスペースを用意しております! お子様と一緒にご来店ください! |
||
こだわり項目
- ※価格は物件の代金総額を表示しており、消費税が課税される場合は税込み価格です。(1,000円未満は切り上げ。)
税率は引き渡し時期により異なりますので、各物件の詳細につきましてはお問い合わせください。 - ※敷地権利が借地権のものは価格に権利金を含みます。
- ※制作中に内容が変更される場合もありますので、あらかじめご了承ください。
- ※購入の前には物件内容や契約条件についてご自身で十分な確認をしていただくようにお願いいたします。
- ※完成予想図はいずれも外構、植栽、外観等実際のものとは多少異なることがあります。
- ※CG合成の画像の場合、実際とは多少異なる場合があります。
周辺地図
周辺施設一覧
- ショッピングセンター
- スーパー
- コンビニ
- ドラッグストア
- ホームセンター
- 飲食店
- その他店舗
- 商店街
- 大学
- 専門学校
- 高校・高専
- 中学校
- 小学校
- 保育園
- 幼稚園
- 公民館・児童館
- 病院
- 郵便局
- 役所
- 図書館
- 金融機関
- 警察・消防
- 趣味・娯楽施設
- 公園・運動施設
- 周辺の街並み
- 駅
- その他
- Saikyo Group トップ
- 新築一戸建てをエリアから探す
- 八王子市
- 東浅川町
- 八王子市東浅川町 新築分譲住宅 全1棟





























