- Saikyo Group トップ
- 土地をエリアから探す
- 調布市
- 菊野台
- G号地 調布市菊野台2丁目 建築条件付き売地 全13区画
G号地 調布市菊野台2丁目 建築条件付き売地 全13区画
情報更新日:2026/01/12 次回更新予定日:2026/01/26
所在地東京都調布市菊野台2丁目[周辺地図]
交 通京王線「柴崎」駅徒歩2分





◆POINT1◆ 敷地面積ゆとりの31坪以上!建物価格1400万円より承ります。お好きなプランで夢のマイホームを!
◆POINT2◆ 参考間取りもございます。LDK15帖以上の3LDK~4LDK、WICやSIC付きなど多彩なプランとなっております♪
◆POINT3◆ お客様のご要望に沿ったプランをご用意いたしますので、お気軽にご相談ください!
すべての画像
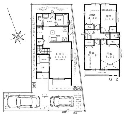
延床面積約87.98m2、参考建物価格1400万円より承ります。土地+建物参考プラン価格7990万円(税込)
土地建物総額【7690万円~】京王線「柴崎」駅徒歩2分の駅近好立地!全13区画の大型分譲地となっております!建築条件外しもご相談下さい!
全体区画図
敷地面積ゆとりの31坪以上!建物価格1400万円より承ります。こだわりの設備・内外装で夢のマイホームを♪
参考間取り図もございます。LDK15帖以上の3LDK~4LDK、WICやSIC、パントリー付きなど多彩なプランとなっております♪
お客様のご要望に沿ったプランをご用意いたしますので、お気軽にご相談ください!
小・中学校まで徒歩約10分でお子様が無理なく通える距離です。保育園や幼稚園も近くに多数あり、子育てファミリーには嬉しい環境です!
交通量の少ない前面道路ですので、小さなお子様がおられるご家庭でも安心してお住まいいただけます。
南側5m道路に面した陽当たりの良い立地!新設道路内も幅員が5mあり、お車の切り替えしも出来ますので、駐車もスムーズに行えます!
周辺は商業施設や公共施設、医療施設など、生活をサポートする施設が揃い、子育てにも優しく暮らしやすいロケーションです!
【施工例】開放感と採光にこだわった広々としたLDKです。陽光いっぱいの空間で家族団らんの時間も増えそうですね!
【施工例】家族が集い、楽しい会話と美味しいごはん。何気ない家族団らんの時間が幸せに感じられる、そんな空間になりそうです。
【施工例】広々としたLDKは家具の配置やコーディネイトが楽しめます!ダイニングテーブルとソファーを置いても余裕の広さです!
【施工例】リビングにいる家族とコミュニケーションをとりながら作業が出来る人気のカウンターキッチン。お子様がリビングにいても目が届くので安心です。
【施工例】一日の疲れを癒してくれる一坪タイプの広々バスルーム♪雨の日のお洗濯にも大活躍な浴室暖房乾燥機付きです!
【施工例】三面鏡付きの洗面化粧台を完備。収納スペースも十分ございますので、ドライヤーなどすっきりと片付きます♪
【施工例】1Fと2Fにトイレがございますので、朝の忙しい時間帯も安心です。毎日使う場所だからこそ、綺麗に清潔にこだわりたいですね♪
【施工例】玄関には収納力に優れたシューズボックスがございますので、ご家族みんなの靴が十分入ります!
【施工例】2面採光で明るく風通しも良好です!天気の良い日は是非窓を開けて空気の入れ替えをしてみるのはいかがでしょうか♪
【施工例】バルコニーに出入りの出来る洋室は、たくさん陽光が差し込む明るい空間です。朝も気持ちよく起きられそうです♪
【施工例】窓と収納のある居室が3~4部屋ございますので、プライベートを分けてのんびりお寛ぎいただけます♪
【施工例】各居室に収納を設けておりますので、衣類の他にもカバンや小物など何でも収納して、居室の全空間を有効活用できます♪
【施工例】「3口ガスコンロシステム」はたくさんの料理が同時に作れて便利な上、凹凸が少ないフラットトップなのでお掃除も楽々です。
【施工例】「ビルトイン食洗機」は手洗いよりも経済的で家計に優しく、家事の負担を軽減してくれるママの強い味方ですね。
【施工例】「浄水器」をスリムに内蔵したハンドシャワー式の水栓金具です。シンクもスッキリ!
【施工例】「床下収納」はストックの食材や普段使わない調理器具・食器などを管理しやすく収納できます。
【施工例】「オートバスシステム」は浴室のお湯張り、温度調整などを、キッチンなど浴室以外から操作が出来る便利なシステムです。
【施工例】「浴室暖房乾燥機」は梅雨や花粉の時期、雨の日の洗濯物の乾燥に重宝します。寒い冬も入浴前の暖房運転で快適なバスタイムを♪
【施工例】「リビング床暖房」は、空気を汚さずに室内を快適な温度に保ってくれます。お子様でも安心してつける事ができる暖房器具です。
【施工例】「TVモニター付きインターホン」は、玄関に行かなくても誰が来たのか確認でき、お子様のお留守番も安心です。
担当スタッフより

- 米山 朋之 課長
- 調布市立調和小学校まで徒歩約10分! 調布市立第六中学校まで徒歩約10分! トイボックス柴崎園まで徒歩約4分!
実際にこちらの物件を見学したい!という方はお気軽にお電話ください!
フリーダイヤル「0120-40-6622」お待ちしております!
各棟情報
物件詳細情報
物件No.20000435838-007
| 所在地 | 東京都調布市菊野台2丁目 | ||
|---|---|---|---|
| 交通 | 京王線「柴崎」駅徒歩2分 京王線「国領」駅徒歩14分 京王線「つつじヶ丘」駅徒歩15分 |
||
| 土地面積 | 113.01m² | ||
| 販売区画数 | 13区画 | 総区画数 | 全13区画 |
| 用途地域 | 第一種低層住居専用地域 | 建ぺい率 | 40%/50% |
| 容積率 | 80% | 都市計画 | 市街化区域 |
| 国土法届出 | 不要 | 建築条件 | 建築条件付 |
| 地目 | 宅地 | 現況 | 更地 |
| 引渡時期 | 相談 | 権利種類 | 所有権 |
| 接道 | 西側5M道路に接道 | 小学校区 | 調布市立調和小学校(760m) |
| 中学校区 | 調布市立第六中学校(780m) | 取引態様 | 媒介 |
| 設備 | 本下水 東京電力・都市ガス・公営水道・公共下水 |
||
| 備考・制限等 | ☆住設あんしんサポート 対応物件☆ 最長10年間何度でも利用可能です!! 住宅ローンのご相談も随時受付中です。どのくらいの物件が購入できるのか。 内覧したい物件は購入できるのか。月々のローンはいくらくらいになるのかなど、お気軽にご相談ください♪ ご来店後は商談スペースから見える場所にキッズスペースを用意しております♪ お子様と一緒にご来店ください♪ |
||
こだわり項目
- ※価格は物件の代金総額を表示しており、消費税が課税される場合は税込み価格です。(1,000円未満は切り上げ。)
税率は引き渡し時期により異なりますので、各物件の詳細につきましてはお問い合わせください。 - ※敷地権利が借地権のものは価格に権利金を含みます。
- ※制作中に内容が変更される場合もありますので、あらかじめご了承ください。
- ※購入の前には物件内容や契約条件についてご自身で十分な確認をしていただくようにお願いいたします。
- ※完成予想図はいずれも外構、植栽、外観等実際のものとは多少異なることがあります。
- ※CG合成の画像の場合、実際とは多少異なる場合があります。
周辺地図
周辺施設一覧
- ショッピングセンター
- スーパー
- コンビニ
- ドラッグストア
- ホームセンター
- 飲食店
- その他店舗
- 商店街
- 大学
- 専門学校
- 高校・高専
- 中学校
- 小学校
- 保育園
- 幼稚園
- 公民館・児童館
- 病院
- 郵便局
- 役所
- 図書館
- 金融機関
- 警察・消防
- 趣味・娯楽施設
- 公園・運動施設
- 周辺の街並み
- 駅
- その他
- Saikyo Group トップ
- 土地をエリアから探す
- 調布市
- 菊野台
- G号地 調布市菊野台2丁目 建築条件付き売地 全13区画








