- Saikyo Group トップ
- 新築一戸建てをエリアから探す
- 調布市
- 柴崎
- 1号棟 【弊社限定公開物件】調布市柴崎2丁目 新築分譲住宅 全3棟
1号棟 【弊社限定公開物件】調布市柴崎2丁目 新築分譲住宅 全3棟
情報更新日:2025/11/07 次回更新予定日:2025/11/15
所在地東京都調布市柴崎2丁目[周辺地図]
交 通京王線「つつじヶ丘」駅徒歩18分





◆POINT1◆ 国が定めた住宅機能表示制度において7項目で最高等級を取得!耐震性などに優れた安心の邸宅です!
◆POINT2◆ 1号棟は16帖以上のLDKに収納付き居室が3部屋!WIC付き♪2号棟、3号棟はロフト付きです!
◆POINT3◆ 2号棟、3号棟の洋室は広々1部屋としても、区切って2部屋としてもご使用いただけます!
すべての画像
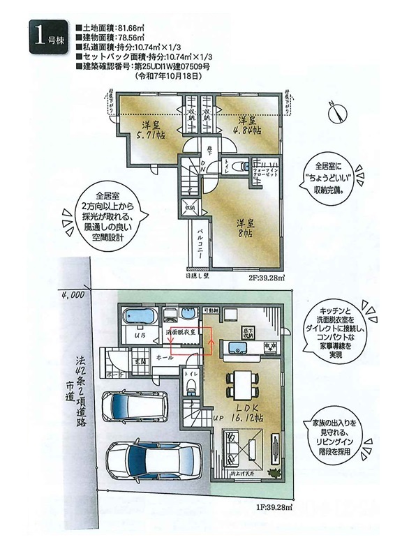
間取り
\\☆弊社限定公開☆//京王線「つつじヶ丘」駅徒歩18分!バス便ご利用でバス停徒歩約3分!
全体区画図
国が定めた住宅機能表示制度において7項目で最高等級を取得!耐震性や断熱性などに優れた安心の住まいです!
小学校まで徒歩約4分、中学校まで徒歩約10分でお子様が無理なく通える距離です。保育園や幼稚園も近くに多数あり、子育てファミリーには嬉しい環境です!
2026年1月上旬完成予定・同施工のモデルハウスご案内可能です!
交通量の少ない前面道路ですので、小さなお子様がおられるご家庭でも安心してお住まいいただけます。
お車の出し入れがスムーズに出来る前面道路になります。ストレスを感じる事なく出来ますので駐車苦手な方もご安心いただけます。
車種によりますが、駐車スペースは2台可能です!来客時などに便利な他、セカンドカーをお持ちの方、購入をご検討の方は必見です!
スーパーまで徒歩約7分、コンビニまで徒歩約2分など買い物施設も揃っています。住みやすさと利便性を兼ね備えた環境です。
【施工例】開放感と採光にこだわったLDKです。陽光いっぱいの空間で家族団らんの時間も増えそうですね!
【施工例】家族が集い、楽しい会話と美味しいごはん。何気ない家族団らんの時間が幸せに感じられる、そんな空間になりそうです。
【施工例】広々としたLDKは家具の配置など楽しめます!ダイニングテーブルとソファーを置いても余裕の広さです!
【施工例】リビングにいる家族とコミュニケーションがとりやすい、人気のカウンターキッチンを採用。小さなお子さんがリビングにいても目が届くので安心。来客時には会話を楽しみながらお料理もできます。
【施工例】一日の疲れを癒してくれる一坪タイプの広々バスルーム♪雨の日のお洗濯にも大活躍な浴室暖房乾燥機付きです!
【施工例】三面鏡付きの洗面化粧台を完備。収納スペースも十分ございますので、ドライヤーなどすっきりと片付きます♪
【施工例】2面採光で明るく風通しも良好です!天気の良い日は是非窓を開けて空気の入れ替えをしてみるのはいかがでしょうか♪
【施工例】居室はプライベートタイムとして大事という方が多い!そんな居室はシンプルが一番。飽きのこないスタイルの居室です!
【施工例】シンプルな色調の居室は清潔感があり落ち着いた空間です。家具のコーディネイトも楽しめそうですね♪
【施工例】たっぷり収納ができるウォークインクローゼットは衣替え不要で、すぐに使え、片付け上手に!
【施工例】クローゼット付きの居室は、洋服や荷物など仕分けができるので、お子様も整理整頓がしっかりできますね。
【施工例】1Fと2Fにトイレがございますので、朝の忙しい時間帯も安心ですね。いつも使うトイレだからこそ、綺麗に清潔にこだわりたいです♪
【施工例】玄関には収納力に優れたシューズボックスがございますので、ご家族みんなの靴が十分入ります!
【モニター付きインターホン】
【施工例】モニター付きインターホンは玄関を確認しなくても誰が来たのかすぐわかります。訪問者を確認してから会話することができますので安心して対応できます。
【浴室暖房換気乾燥機】
【施工例】浴室暖房乾燥機は梅雨や花粉の時期、雨の日の洗濯物の乾燥に重宝します。寒い冬も入浴前の暖房運転で快適なバスタイムを♪
【オートバスシステム】
【施工例】浴室のお湯張り、温度調整などを、キッチンなど浴室以外からでも操作できるシステムです。
【3口ガスコンロシステム】
【施工例】3口ガスコンロシステムはたくさんの料理が同時に作れて便利な上、凹凸が少ないフラットトップなのでお掃除も楽々です。
【床下収納】
【施工例】「床下収納」は日用品のストックや、使用頻度の低い物などを収納するのに便利なスペースです。
【浄水器】
【施工例】浄水器をスリムに内蔵したハンドシャワー式の水栓金具です。シンクもスッキリ!
担当スタッフより

- 米山 朋之 課長
- 調布市立上ノ原小学校まで徒歩約4分! 調布市立神代中学校まで徒歩約10分! 調布上ノ原保育園まで徒歩約3分!
実際にこちらの物件を見学したい!という方はお気軽にお電話ください!
フリーダイヤル「0120-40-6622」お待ちしております!
各棟情報
物件詳細情報
物件No.20000429630-002
| 所在地 | 東京都調布市柴崎2丁目 | ||
|---|---|---|---|
| 交通 | 京王線「つつじヶ丘」駅徒歩18分 京王線「つつじヶ丘」駅バス5分 バス停「上ノ原小学校」停歩3分 京王線「柴崎」駅徒歩20分 |
||
| 間取 | 3LDK+WIC (LDK16.12帖、洋室8帖、洋室5.74帖、洋室4.84帖) | ||
| 土地面積 | 81.68m² (私道10.74m²別に有、私道持分比率:1/3、セットバック3.58m²) | ||
| 建物面積 | 78.56m² | ||
| 販売戸数 | 3戸 | 総戸数 | 全3戸 |
| 構造・規模 | 木造 2階建て | 築年・入居 | 2026年1月上旬 |
| 建物現況 | 建築中 | 建築確認番号 | 第25UDI1W建07509号 |
| 駐車スペース | 2台可(カースペース) 料金:無料 | 引渡時期 | 期日指定有(2026年2月上旬) |
| 国土法届出 | 不要 | 地目 | 宅地 |
| 用途地域 | 第一種低層住居専用地域/第二種中高層住居専用地域 | 建ぺい率 | 40%/60% |
| 容積率 | 80%/200% | 都市計画 | 市街化区域 |
| 権利種類 | 所有権 | 接道 | 北西側2.72M公道に接道 |
| 小学校区 | 調布市立上ノ原小学校(258m) | 中学校区 | 調布市立神代中学校(748m) |
| 取引態様 | 専任媒介 | ||
| 設備 | 本下水 東京電力・都市ガス・公営水道・公共下水 |
||
| 備考・制限等 | ☆住設あんしんサポート 対応物件☆ 最長10年間何度でも利用可能です!! 住宅ローンのご相談も随時受付中です。どのくらいの物件が購入できるのか。 内覧したい物件は購入できるのか。月々のローンはいくらくらいになるのかなど、お気軽にご相談ください♪ ご来店後は商談スペースから見える場所にキッズスペースを用意しております♪ お子様と一緒にご来店ください♪ |
||
こだわり項目
- ※価格は物件の代金総額を表示しており、消費税が課税される場合は税込み価格です。(1,000円未満は切り上げ。)
税率は引き渡し時期により異なりますので、各物件の詳細につきましてはお問い合わせください。 - ※敷地権利が借地権のものは価格に権利金を含みます。
- ※制作中に内容が変更される場合もありますので、あらかじめご了承ください。
- ※購入の前には物件内容や契約条件についてご自身で十分な確認をしていただくようにお願いいたします。
- ※完成予想図はいずれも外構、植栽、外観等実際のものとは多少異なることがあります。
- ※CG合成の画像の場合、実際とは多少異なる場合があります。
周辺地図
周辺施設一覧
- ショッピングセンター
- スーパー
- コンビニ
- ドラッグストア
- ホームセンター
- 飲食店
- その他店舗
- 商店街
- 大学
- 専門学校
- 高校・高専
- 中学校
- 小学校
- 保育園
- 幼稚園
- 公民館・児童館
- 病院
- 郵便局
- 役所
- 図書館
- 金融機関
- 警察・消防
- 趣味・娯楽施設
- 公園・運動施設
- 周辺の街並み
- 駅
- その他
- Saikyo Group トップ
- 新築一戸建てをエリアから探す
- 調布市
- 柴崎
- 1号棟 【弊社限定公開物件】調布市柴崎2丁目 新築分譲住宅 全3棟






























