- Saikyo Group トップ
- 新築一戸建てをエリアから探す
- 調布市
- 深大寺東町
- 調布市深大寺東町1丁目 新築分譲住宅 全1棟
調布市深大寺東町1丁目 新築分譲住宅 全1棟
情報更新日:2025/11/07 次回更新予定日:2025/11/21
所在地東京都調布市深大寺東町1丁目[周辺地図]
交 通京王線「調布」駅バス18分 停歩2分





POINT1 住宅性能表示制度W取得予定(設計+建設)
POINT2 子育てグリーン住宅支援事業対象物件
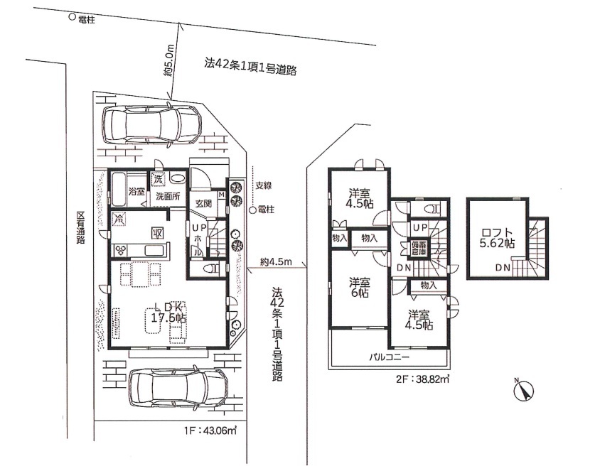
POINT3 固定階段付ロフトが付いているので、収納には困りません
すべての画像
角地に位置しているので日当たりや風通しが良好です。開放感と落ち着きを兼ね備えた住まいです。■調布市深大寺東町1 新築一戸建て■
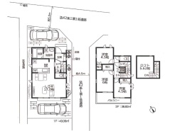
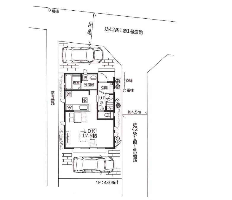
間取り■調布市深大寺東町1 新築一戸建て■
オープンでのびやかな空間を生み出すこだわりの「広がり」と「ゆとり」。家族と過ごす時間を大切にした住空間です。 ■調布市深大寺東町1 新築一戸建て■
キッチンに立った位置から、リビングにいる家族に目線が届く見守りキッチン! ■調布市深大寺東町1 新築一戸建て■
サニタリースペースには窓が備えられております。毎朝の身支度も、陽の光差し込む明るい空間で、快適にお使い頂けそうです。 ■調布市深大寺東町1 新築一戸建て■
ゆったりと足を伸ばせる一坪タイプの浴室です。浴室換気乾燥機付きですので、カビの発生も抑制出来ます。 ■調布市深大寺東町1 新築一戸建て■
大きな窓からはお陽さまの光や爽やかな風をたっぷり取り込めます。室内はいつも明るい印象なので気持ちの良い朝を迎えられます。毎日の生活も明るくなりそう。 ■調布市深大寺東町1 新築一戸建て■
様々な用途にお使いいただけるロフト。季節物の収納などお荷物の整理にご利用ください。 ■調布市深大寺東町1 新築一戸建て■
区画図■調布市深大寺東町1 新築一戸建て■
玄関は清潔感のある空間にしたいもの。ご家族が多いご家庭にはとても便利なたっぷり収納できるシューズボックス付きです。 ■調布市深大寺東町1 新築一戸建て■
陽当りの良いバルコニー。心地よい風が吹き込み洗濯物だけでなく、お布団もふっかふかです。 ■調布市深大寺東町1 新築一戸建て■
車の出し入れが簡単に行える、使いやすいカースペースです。■調布市深大寺東町1 新築一戸建て■
前面道路■調布市深大寺東町1 新築一戸建て■
前面道路■調布市深大寺東町1 新築一戸建て■
リビング■調布市深大寺東町1 新築一戸建て■
リビング■調布市深大寺東町1 新築一戸建て■
リビングダイニング■調布市深大寺東町1 新築一戸建て■
ダイニング■調布市深大寺東町1 新築一戸建て■
ダイニング■調布市深大寺東町1 新築一戸建て■
ダイニングキッチン■調布市深大寺東町1 新築一戸建て■
キッチン■調布市深大寺東町1 新築一戸建て■
キッチン■調布市深大寺東町1 新築一戸建て■
洗面所■調布市深大寺東町1 新築一戸建て■
トイレ■調布市深大寺東町1 新築一戸建て■
寝室■調布市深大寺東町1 新築一戸建て■
子供部屋■調布市深大寺東町1 新築一戸建て■
収納■調布市深大寺東町1 新築一戸建て■
TVモニター付きインターホン■調布市深大寺東町1 新築一戸建て■
玄関■調布市深大寺東町1 新築一戸建て■
バルコニー■調布市深大寺東町1 新築一戸建て■
キッチン■調布市深大寺東町1 新築一戸建て■
キッチン■調布市深大寺東町1 新築一戸建て■
担当スタッフより

- 村元 裕太
- 調布市立深大寺小学校まで徒歩約7分!
調布市立神代中学校まで徒歩約17分!
ぽけっとランド深大寺保育園まで徒歩約10分!
【営業時間9:00~19:00】(水曜定休)
上記時間はお電話が繋がりやすくなっております。ぜひお気軽にご連絡下さい!
【Saikyo Homeのご安心サポート】
◆現地見学会(事前に予約お願いします。)◆
毎日ご見学・ご相談可能です。平日、夜間も相談可能です。(9:00~21:00)
自宅送迎、最寄り駅待ち合わせも可能ですのでご相談下さい。
◆ファイナンシャルプランナー個別相談◆
住宅購入に関わるお金の問題についてファイナンシャルプランナー
が無料でお客様のご相談をお受けします。
◆オンライン接客・内見◆
店舗へ行くことなくパソコンやスマートフォン上のビデオ通話で
実際に内覧して頂く事が可能です。
LINE通話・Zoom・face timeなどがご対応可能です。
◆住設あんしんサポート◆
最長10年間何度でも新品交換含め無料修理が
窓口一本化でスムーズに行える弊社ならではのサービスです。
物件詳細情報
物件No.20000427482
| 所在地 | 東京都調布市深大寺東町1丁目 | ||
|---|---|---|---|
| 交通 | 京王線「調布」駅バス18分 バス停「西原」停歩2分 京王線「つつじヶ丘」駅徒歩36分 |
||
| 間取 | 3LDK | ||
| 土地面積 | 102.01m² 実測 | ||
| 建物面積 | 81.88m² 実測 | ||
| 販売戸数 | 1戸 | 総戸数 | 全1戸 |
| 構造・規模 | 木造 2階建て | 築年・入居 | 2025年10月下旬 |
| バルコニー | 南向き | 駐車スペース | 2台(カースペース) |
| 引渡時期 | 相談 | 施工会社 | 第※号 |
| 国土法届出 | 不要 | 地目 | 宅地 |
| 用途地域 | 第一種低層住居専用地域 | 建ぺい率 | 40%/50% |
| 容積率 | 100% | 都市計画 | 市街化区域 |
| 権利種類 | 所有権 | 接道 | 北東側5M道路に接道 南側4.5M道路に接道 |
| 小学校区 | 深大寺小学校(560m) | 中学校区 | 神代中学校(1300m) |
| 取引態様 | 媒介 | ||
| 設備 | 本下水 東京電力・都市ガス・公営水道・公共下水 |
||
| 備考・制限等 | ☆住設あんしんサポート 対応物件☆ 最長10年間何度でも利用可能です!! 住宅ローンのご相談も随時受付中です。どのくらいの物件が購入できるのか。 内覧したい物件は購入できるのか。月々のローンはいくらくらいになるのかなど、お気軽にご相談ください! ご来店後は商談スペースから見える場所にキッズスペースを用意しております! お子様と一緒にご来店ください! |
||
こだわり項目
- ※価格は物件の代金総額を表示しており、消費税が課税される場合は税込み価格です。(1,000円未満は切り上げ。)
税率は引き渡し時期により異なりますので、各物件の詳細につきましてはお問い合わせください。 - ※敷地権利が借地権のものは価格に権利金を含みます。
- ※制作中に内容が変更される場合もありますので、あらかじめご了承ください。
- ※購入の前には物件内容や契約条件についてご自身で十分な確認をしていただくようにお願いいたします。
- ※完成予想図はいずれも外構、植栽、外観等実際のものとは多少異なることがあります。
- ※CG合成の画像の場合、実際とは多少異なる場合があります。
周辺地図
周辺施設一覧
- ショッピングセンター
- スーパー
- コンビニ
- ドラッグストア
- ホームセンター
- 飲食店
- その他店舗
- 商店街
- 大学
- 専門学校
- 高校・高専
- 中学校
- 小学校
- 保育園
- 幼稚園
- 公民館・児童館
- 病院
- 郵便局
- 役所
- 図書館
- 金融機関
- 警察・消防
- 趣味・娯楽施設
- 公園・運動施設
- 周辺の街並み
- 駅
- その他
- Saikyo Group トップ
- 新築一戸建てをエリアから探す
- 調布市
- 深大寺東町
- 調布市深大寺東町1丁目 新築分譲住宅 全1棟










































