- Saikyo Group トップ
- 新築一戸建てをエリアから探す
- 日野市
- 栄町
- 6号棟 日野市栄町4丁目 新築分譲住宅 全6棟
6号棟 日野市栄町4丁目 新築分譲住宅 全6棟
情報更新日:2025/11/03 次回更新予定日:2025/11/17
所在地東京都日野市栄町4丁目[周辺地図]
交 通中央線「日野」駅徒歩13分





POINT1 TOEI Safety Damper搭載!耐震+制震で地震に強い住宅です
POINT2 納戸やWICなど各棟たっぷりの収納スペースを完備
POINT3 日野駅徒歩13分!コンビニ徒歩1分!お買い物にも便利です!
すべての画像
スーパーやコンビニなど買い物施設が徒歩圏内。住みやすさと利便性を兼ね備えた環境です。 ■日野市栄町4 新築一戸建■
住みやすさと利便性を兼ね備えた立地。高い住宅性能を備えた安心で暮らしやすい住まいです。 ■日野市栄町4 新築一戸建■
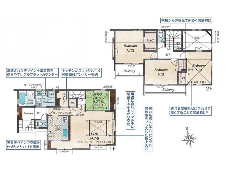
6号棟間取り図■日野市栄町4 新築一戸建■
玄関はおうちの顔です。いつも明るくキレイな状態でご家族の帰りをお待ちします。お子様のお留守番にも安心なTVモニター付インターホン完備です。 ■日野市栄町4 新築一戸建■
2台駐車可能な広々としたカースペースが嬉しいですね。■日野市栄町4 新築一戸建■
前面道路■日野市栄町4 新築一戸建■
前面道路■日野市栄町4 新築一戸建■
オープンでのびやかな空間を生み出すこだわりの「広がり」と「ゆとり」。家族と過ごす時間を大切にした住空間です。※家具等はCG加工しております。■日野市栄町4 新築一戸建■
対面キッチなのでリビングにいる家族の様子がうかがえるので小さなお子様がいても安心ですね。■日野市栄町4 新築一戸建■
サニタリースペースには窓が備えられております。毎朝の身支度も、陽の光差し込む明るい空間で、快適にお使い頂けそうです。 ■日野市栄町4 新築一戸建■
一日の疲れを癒しながら、お子様と一緒にバスタイムも楽しめる清潔感あふれる浴室です。浴室は換気・乾燥・暖房機能付きなので、雨の日のお洗濯や寒い冬でも1年中快適です。 ■日野市栄町4 新築一戸建■
風通しのいい自由なプライベート空間。ゆっくりとくつろぐスペースとしてもご利用いただけます!※家具等はCG加工しております。■日野市栄町4 新築一戸建■
ひと目で収納物を確認できるウォークインクローゼットは、ゆとりの広さを備えた大型収納。数多くの衣類に加え、足元には引出しや衣装箱、シューズボックスなども収納することができます。■日野市栄町4 新築一戸建■
区画図■日野市栄町4 新築一戸建■
玄関は清潔感のある空間にしたいもの。ご家族が多いご家庭にはとても便利なたっぷり収納できるシューズボックス付きです。 ■日野市栄町4 新築一戸建■
陽当りの良いバルコニー。心地よい風が吹き込み洗濯物だけでなく、お布団もふっかふかです。 ■日野市栄町4 新築一戸建■
カースペースはコンクリート仕上げ。雨の日でも足元を気にすることなく駐車できます。 ■日野市栄町4 新築一戸建■
前面道路■日野市栄町4 新築一戸建■
前面道路■日野市栄町4 新築一戸建■
リビング■日野市栄町4 新築一戸建■
リビング■日野市栄町4 新築一戸建■
リビングダイニング■日野市栄町4 新築一戸建■
ダイニングキッチン■日野市栄町4 新築一戸建■
キッチン■日野市栄町4 新築一戸建■
キッチン■日野市栄町4 新築一戸建■
洗面所■日野市栄町4 新築一戸建■
トイレ■日野市栄町4 新築一戸建■
寝室■日野市栄町4 新築一戸建■
■日野市栄町4 新築一戸建■
子供部屋■日野市栄町4 新築一戸建■
納戸■日野市栄町4 新築一戸建■
ウォーク・イン・クローゼット■日野市栄町4 新築一戸建■
TVモニター付きインターホン■日野市栄町4 新築一戸建■
玄関■日野市栄町4 新築一戸建■
バルコニー■日野市栄町4 新築一戸建■
キッチン■日野市栄町4 新築一戸建■
キッチン■日野市栄町4 新築一戸建■
キッチン■日野市栄町4 新築一戸建■
キッチン■日野市栄町4 新築一戸建■
収納■日野市栄町4 新築一戸建■
担当スタッフより

- 樽井 龍
- 日野市立東光寺小学校まで徒歩約9分! 日野市立大坂上中学校まで徒歩約20分!
しんさかした保育園まで徒歩約8分! セブンイレブンまで徒歩約1分!
☆当社では現地見学会を毎日開催中!【営業時間:8時30分~19時】
当日のご見学をご希望される場合はお電話が便利!
インターネット予約でいつでもご見学可能!
☆中央線「立川駅」北口から徒歩10分!
キッズスペース完備でお子様連れでもご安心。
提携駐車場が目の前にございますのでお車でのご来店も可能!
◆Saikyo Homeの安心サポート◆
1】ファイナンシャルプランナー個別相談
今後に大切な資金のご相談をFPが無料でご相談お受け致します!
2】オンラインによる接客・見学(実績多くございます)
zoom・LINE・facetimeなど様々なツールで可能!
3】内見時のご送迎(営業車)も快く承ります。
※ワゴン車・チャイルドシートも完備!
また、弊社ではお客様一人一人に合わせ大手銀行から地方銀行
ネット銀行など幅広くご紹介可能です!
各棟情報
物件詳細情報
物件No.20000427199-005
| 所在地 | 東京都日野市栄町4丁目 | ||
|---|---|---|---|
| 交通 | 中央線「日野」駅徒歩13分 多摩モノレール「甲州街道」駅徒歩27分 八高線「小宮」駅徒歩30分 |
||
| 間取 | 3LDK + 3LDK+マルチスキップ+WIC+パントリー | ||
| 土地面積 | 121.56m² | ||
| 建物面積 | 103.8m² | ||
| 販売戸数 | 4戸 | 総戸数 | 全6戸 |
| 構造・規模 | 木造 2階建て | 築年・入居 | 2025年9月 |
| 建物現況 | 完成済 | 駐車スペース | あり(カースペース) |
| 引渡時期 | 即引渡可 | 国土法届出 | 不要 |
| 地目 | 宅地 | 用途地域 | 第一種低層住居専用地域/第二種低層住居専用地域 |
| 建ぺい率 | 40%/60% | 容積率 | 80%/200% |
| 都市計画 | 市街化区域 | 権利種類 | 所有権 |
| 小学校区 | 日野市立東光寺小学校(716m) | 中学校区 | 日野市立大坂上中学校(1600m) |
| 取引態様 | 媒介 | ||
| 設備 | 本下水、個別LPG 東京電力・LPガス・公営水道・公共下水 |
||
| 備考・制限等 | ☆住設あんしんサポート 対応物件☆ 最長10年間何度でも利用可能です!! 住宅ローンのご相談も随時受付中です。どのくらいの物件が購入できるのか。 内覧したい物件は購入できるのか。月々のローンはいくらくらいになるのかなど、お気軽にご相談ください! ご来店後は商談スペースから見える場所にキッズスペースを用意しております! お子様と一緒にご来店ください! |
||
こだわり項目
- ※価格は物件の代金総額を表示しており、消費税が課税される場合は税込み価格です。(1,000円未満は切り上げ。)
税率は引き渡し時期により異なりますので、各物件の詳細につきましてはお問い合わせください。 - ※敷地権利が借地権のものは価格に権利金を含みます。
- ※制作中に内容が変更される場合もありますので、あらかじめご了承ください。
- ※購入の前には物件内容や契約条件についてご自身で十分な確認をしていただくようにお願いいたします。
- ※完成予想図はいずれも外構、植栽、外観等実際のものとは多少異なることがあります。
- ※CG合成の画像の場合、実際とは多少異なる場合があります。
周辺地図
周辺施設一覧
- ショッピングセンター
- スーパー
- コンビニ
- ドラッグストア
- ホームセンター
- 飲食店
- その他店舗
- 商店街
- 大学
- 専門学校
- 高校・高専
- 中学校
- 小学校
- 保育園
- 幼稚園
- 公民館・児童館
- 病院
- 郵便局
- 役所
- 図書館
- 金融機関
- 警察・消防
- 趣味・娯楽施設
- 公園・運動施設
- 周辺の街並み
- 駅
- その他
- Saikyo Group トップ
- 新築一戸建てをエリアから探す
- 日野市
- 栄町
- 6号棟 日野市栄町4丁目 新築分譲住宅 全6棟








































