- Saikyo Group トップ
- 新築一戸建てをエリアから探す
- 八王子市
- 小門町
- 八王子市小門町 新築分譲住宅 全5棟
八王子市小門町 新築分譲住宅 全5棟
情報更新日:2025/11/13 次回更新予定日:2025/11/24 取引条件有効期限:2025/11/24
所在地東京都八王子市小門町[周辺地図]
交 通中央線「西八王子」駅徒歩12分





POINT1 人気のカウンターキッチンなのでリビングの様子も見守れます!
POINT2 食洗機や浴室乾燥機など暮らしを彩る多彩な設備も完備しています!
POINT3 カースペース完備!
すべての画像
新しい暮らしが始まる、洗練された外観。穏やかな街並みに包まれたロケーション。■八王子市小門町 新築一戸建■
大画面TVも余裕、インテリアプランが考えやすいワイドなリビング。対面キッチンでリビングにいるお子さまにも目が届きます。※家具はCG加工しております。 ■八王子市小門町 新築一戸建■
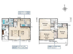
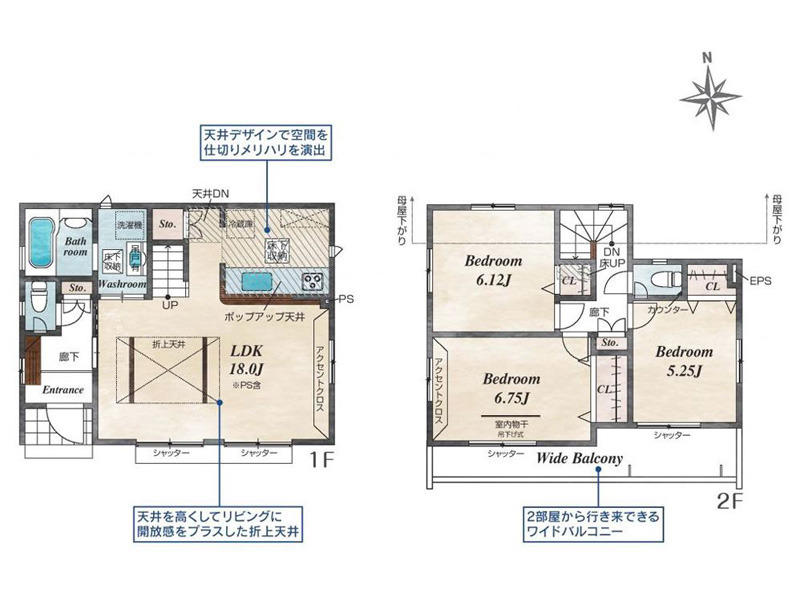
3号棟間取り■八王子市小門町 新築一戸建■
キッチンには食器洗い乾燥機や蛇口一体型浄水器を搭載。見た目も美しく大容量の収納も魅力的なシステムキッチンを採用しています。 ■八王子市小門町 新築一戸建■
シンプルかつ機能性も追求した使い勝手の良い洗面台。広めで使いやすくお手入れもカンタン。いつでもすっきり清潔に保てます。 ■八王子市小門町 新築一戸建■
一日の疲れを癒すための心地よいバスタイムを演出する浴室はゆとりあるサイズを採用。浴室乾燥機付き! ■八王子市小門町 新築一戸建■
LDKと続き間になった和室。来客時や寛ぎの時間に、あると便利な癒し空間。便利な収納も完備。 ■八王子市小門町 新築一戸建■
明るく風通しのいい部屋は自由なプライベート空間。ゆっくりとくつろぐスペースとしてもご利用いただけます!※家具はCG加工しております。 ■八王子市小門町 新築一戸建■
全居室に収納を完備しておりますので、居室の全空間を有効活用出来ます。自分好みのお部屋で、ゆったりお寛ぎ頂けます。 ■八王子市小門町 新築一戸建■
収納力のあるウォークインクローゼット。洋服はもちろん、バッグや小物もスッキリと収納いただけます! ■八王子市小門町 新築一戸建■
区画図■八王子市小門町 新築一戸建■
たっぷりの陽光と心地よい風が舞い込むバルコニー。たくさんのお洗濯物も一気に片付きます! ■八王子市小門町 新築一戸建■
快適な温水洗浄便座。清潔感あふれる白いクロスに使いやすいハンドウォッシュ機能をプラス! ■八王子市小門町 新築一戸建■
お出かけ前の身だしなみチェックが出来る姿見鏡付の玄関収納付き。かさばる物も収納できる優れものです。 ■八王子市小門町 新築一戸建■
玄関ドアはカードキー付!タッチするだけでいいので両手がふさがっていもらくらく解錠! ■八王子市小門町 新築一戸建■
カースペースはコンクリート仕上げ。雨の日も足元は気になりません! ■八王子市小門町 新築一戸建■
外観■八王子市小門町 新築一戸建■
リビング■八王子市小門町 新築一戸建■
リビング■八王子市小門町 新築一戸建■
リビングダイニング■八王子市小門町 新築一戸建■
ダイニング■八王子市小門町 新築一戸建■
ダイニング■八王子市小門町 新築一戸建■
キッチン■八王子市小門町 新築一戸建■
キッチン■八王子市小門町 新築一戸建■
キッチン■八王子市小門町 新築一戸建■
キッチン■八王子市小門町 新築一戸建■
キッチン■八王子市小門町 新築一戸建■
キッチン■八王子市小門町 新築一戸建■
キッチン■八王子市小門町 新築一戸建■
洗面台■八王子市小門町 新築一戸建■
和室■八王子市小門町 新築一戸建■
居室■八王子市小門町 新築一戸建■
担当スタッフより

- 重泉 吉紀
- 八王子市立第七小学校まで徒歩約8分! 八王子市立第四中学校まで徒歩約12分!
八王子ふたば保育園まで徒歩約6分! なかよし幼稚園まで徒歩約8分!
☆当社では現地見学会を毎日開催中!【営業時間:8時30分~19時】
当日のご見学をご希望される場合はお電話が便利!
インターネット予約でいつでもご見学可能!
☆中央線「立川駅」北口から徒歩10分!
キッズスペース完備でお子様連れでもご安心。
提携駐車場が目の前にございますのでお車でのご来店も可能!
◆Saikyo Homeの安心サポート◆
1】ファイナンシャルプランナー個別相談
今後に大切な資金のご相談をFPが無料でご相談お受け致します!
2】オンラインによる接客・見学(実績多くございます)
zoom・LINE・facetimeなど様々なツールで可能!
3】内見時のご送迎(営業車)も快く承ります。
※ワゴン車・チャイルドシートも完備!
また、弊社ではお客様一人一人に合わせ大手銀行から地方銀行
ネット銀行など幅広くご紹介可能です!
各棟情報
物件詳細情報
物件No.20000425466
| 所在地 | 東京都八王子市小門町 | ||
|---|---|---|---|
| 交通 | 中央線「西八王子」駅徒歩12分 八高線「八王子」駅徒歩24分 京王線「京王八王子」駅徒歩19分 |
||
| 間取 | 3LDK~4LDK | ||
| 土地面積 | 101.6m² ~ 101.6m² 実測 | ||
| 建物面積 | 82.61m² ~ 95.92m² 実測 | ||
| 販売戸数 | 2戸 | 総戸数 | 全5戸 |
| 構造・規模 | 木造 2階建て | 築年・入居 | 2025年10月上旬 |
| 建築確認番号 | 第R07SHC110149号、他 | 駐車スペース | 1台 料金:無料 |
| 引渡時期 | 期日指定有(2025年11月上旬) | 地目 | 宅地 |
| 用途地域 | 準工業地域 | 建ぺい率 | 60% |
| 容積率 | 200% | 都市計画 | 市街化区域 |
| 権利種類 | 所有権 | 接道 | 南側7.5M公道に接道 西側4.5M公道に接道 |
| 小学校区 | 八王子市立第七小学校(621m) | 中学校区 | 八王子市立第四中学校(892m) |
| 取引態様 | 媒介 | ||
| 設備 | 東京電力・都市ガス・公営水道・本下水 | ||
| 備考・制限等 | ☆住設あんしんサポート 対応物件☆ 最長10年間何度でも利用可能です!! 住宅ローンのご相談も随時受付中です。どのくらいの物件が購入できるのか。 内覧したい物件は購入できるのか。月々のローンはいくらくらいになるのかなど、お気軽にご相談ください! ご来店後は商談スペースから見える場所にキッズスペースを用意しております! お子様と一緒にご来店ください! |
||
こだわり項目
- ※価格は物件の代金総額を表示しており、消費税が課税される場合は税込み価格です。(1,000円未満は切り上げ。)
税率は引き渡し時期により異なりますので、各物件の詳細につきましてはお問い合わせください。 - ※敷地権利が借地権のものは価格に権利金を含みます。
- ※制作中に内容が変更される場合もありますので、あらかじめご了承ください。
- ※購入の前には物件内容や契約条件についてご自身で十分な確認をしていただくようにお願いいたします。
- ※完成予想図はいずれも外構、植栽、外観等実際のものとは多少異なることがあります。
- ※CG合成の画像の場合、実際とは多少異なる場合があります。
周辺地図
周辺施設一覧
- ショッピングセンター
- スーパー
- コンビニ
- ドラッグストア
- ホームセンター
- 飲食店
- その他店舗
- 商店街
- 大学
- 専門学校
- 高校・高専
- 中学校
- 小学校
- 保育園
- 幼稚園
- 公民館・児童館
- 病院
- 郵便局
- 役所
- 図書館
- 金融機関
- 警察・消防
- 趣味・娯楽施設
- 公園・運動施設
- 周辺の街並み
- 駅
- その他
- Saikyo Group トップ
- 新築一戸建てをエリアから探す
- 八王子市
- 小門町
- 八王子市小門町 新築分譲住宅 全5棟

















































