- Saikyo Group トップ
- 新築一戸建てをエリアから探す
- 府中市
- 白糸台
- 府中市白糸台4丁目 新築分譲住宅 全1棟
府中市白糸台4丁目 新築分譲住宅 全1棟
情報更新日:2025/12/08 次回更新予定日:2025/12/22
所在地東京都府中市白糸台4丁目[周辺地図]
交 通京王線「武蔵野台」駅徒歩4分





・家の近くにはスーパーやコンビニが充実!徒歩10分圏内なので普段の生活も安心
・学校・保育園が徒歩10分圏内!子育てにはピッタリの環境です
すべての画像
一日の中で多くの時間を過すことになるリビングダイニングだからこそ、いつも穏やかな空間であることが必然。爽やかな通風と採光を存分に感じる事が出来る空間です。※家具等はCG加工です■府中市白糸台4 新築一戸建て■
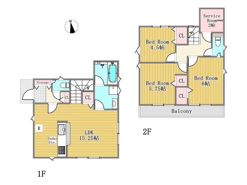
間取り図■府中市白糸台4 新築一戸建て■
駅チカと、広い空が一望できる閑静さを両立させたい方にはピッタリの立地環境です。■府中市白糸台4 新築一戸建て■
収納力豊富なシステムキッチン。床下収納も付いてキッチンスペースはいつでもスッキリ■府中市白糸台4 新築一戸建て■
大きな三面鏡がついた洗面化粧台。鏡の裏にも収納があり洗面台がすっきりと片付きます。朝の身支度にも大変便利です。■府中市白糸台4 新築一戸建て■
一日の疲れを癒すための心地よいバスタイムを演出する浴室はゆとりあるサイズを採用。保温機能付き!■府中市白糸台4 新築一戸建て■
2面採光で明かりを取り入れたお部屋は子供部屋や書斎などにお使いできます!※家具等はCG加工です。■府中市白糸台4 新築一戸建て■
明るめのフローリングですので、壁紙ともマッチし、お部屋を更に広く見せてくれる効果も。■府中市白糸台4 新築一戸建て■
区画図■府中市白糸台4 新築一戸建て■
居室に収納を完備しておりますので、居室の全空間を有効活用出来ます。自分好みのお部屋で、ゆったりお寛ぎ頂けます。■府中市白糸台4 新築一戸建て■
お家に出会う人々を出迎える玄関だからこそ、広々清潔感あふれる空間にしたいもの。採光・通風にも配慮された開口部を設ける事で、毎日明るい空間をキープします。■府中市白糸台4 新築一戸建て■
お洗濯ものや布団を干したりするのに十分なスペースを取ったバルコニーは大変便利です。■府中市白糸台4 新築一戸建て■
カースペースはアスファルト仕上げ。雨の日も足元は気になりません!■府中市白糸台4 新築一戸建て■
■府中市白糸台4 新築一戸建て■
■府中市白糸台4 新築一戸建て■
■府中市白糸台4 新築一戸建て■
担当スタッフより

- 島野祐一
- 府中市立府中第四小学校まで徒歩約5分!府中市立府中第六中学校まで徒歩約10分!山手こひつじ保育園まで徒歩約6分!
【営業時間9:00~19:00】(水曜定休)
上記時間はお電話が繋がりやすくなっております。ぜひお気軽にご連絡下さい!
【Saikyo Homeのご安心サポート】
◆現地見学会(事前に予約お願いします。)◆
毎日ご見学・ご相談可能です。平日、夜間も相談可能です。(9:00~21:00)
自宅送迎、最寄り駅待ち合わせも可能ですのでご相談下さい。
◆ファイナンシャルプランナー個別相談◆
住宅購入に関わるお金の問題についてファイナンシャルプランナー
が無料でお客様のご相談をお受けします。
◆オンライン接客・内見◆
店舗へ行くことなくパソコンやスマートフォン上のビデオ通話で
実際に内覧して頂く事が可能です。
LINE通話・Zoom・face timeなどがご対応可能です。
◆住設あんしんサポート◆
最長10年間何度でも新品交換含め無料修理が
窓口一本化でスムーズに行える弊社ならではのサービスです。
物件詳細情報
物件No.20000410527
| 所在地 | 東京都府中市白糸台4丁目 | ||
|---|---|---|---|
| 交通 | 京王線「武蔵野台」駅徒歩4分 西武多摩川線「白糸台」駅徒歩5分 京王線「多磨霊園」駅徒歩11分 |
||
| 間取 | 3SLDK | ||
| 土地面積 | 102.92m² 実測 | ||
| 建物面積 | 78.56m² 実測 | ||
| 販売戸数 | 1戸 | 総戸数 | 全1戸 |
| 構造・規模 | 木造 2階建て | 築年・入居 | 2025年6月 |
| バルコニー | 南向き | 建築確認番号 | 第R07SHC100450号 |
| 引渡時期 | 即引渡可 | 国土法届出 | 不要 |
| 地目 | 宅地 | 用途地域 | 第一種低層住居専用地域 |
| 建ぺい率 | 40% | 容積率 | 80% |
| 都市計画 | 市街化区域 | 権利種類 | 所有権 |
| 接道 | 西側4M公道に接道 | 小学校区 | 府中第四小学校(400m) |
| 中学校区 | 府中第六中学校(730m) | 取引態様 | 媒介 |
| 設備 | 本下水 東京電力・都市ガス・公営水道・公共下水 |
||
| その他制限事項 | 景観法、日影制限有 | ||
| 備考・制限等 | ☆住設あんしんサポート 対応物件☆ 最長10年間何度でも利用可能です!! 住宅ローンのご相談も随時受付中です。どのくらいの物件が購入できるのか。 内覧したい物件は購入できるのか。月々のローンはいくらくらいになるのかなど、お気軽にご相談ください! ご来店後は商談スペースから見える場所にキッズスペースを用意しております! お子様と一緒にご来店ください! |
||
こだわり項目
- ※価格は物件の代金総額を表示しており、消費税が課税される場合は税込み価格です。(1,000円未満は切り上げ。)
税率は引き渡し時期により異なりますので、各物件の詳細につきましてはお問い合わせください。 - ※敷地権利が借地権のものは価格に権利金を含みます。
- ※制作中に内容が変更される場合もありますので、あらかじめご了承ください。
- ※購入の前には物件内容や契約条件についてご自身で十分な確認をしていただくようにお願いいたします。
- ※完成予想図はいずれも外構、植栽、外観等実際のものとは多少異なることがあります。
- ※CG合成の画像の場合、実際とは多少異なる場合があります。
周辺地図
周辺施設一覧
- ショッピングセンター
- スーパー
- コンビニ
- ドラッグストア
- ホームセンター
- 飲食店
- その他店舗
- 商店街
- 大学
- 専門学校
- 高校・高専
- 中学校
- 小学校
- 保育園
- 幼稚園
- 公民館・児童館
- 病院
- 郵便局
- 役所
- 図書館
- 金融機関
- 警察・消防
- 趣味・娯楽施設
- 公園・運動施設
- 周辺の街並み
- 駅
- その他
- Saikyo Group トップ
- 新築一戸建てをエリアから探す
- 府中市
- 白糸台
- 府中市白糸台4丁目 新築分譲住宅 全1棟















































