西武拝島線「西武立川」駅徒歩13分!長期優良住宅、早くも最終1棟。4LDK駐車2台可。カーライフも充実です。
- 4,190万円
- 交 通西武拝島線「西武立川」駅 徒歩13分
- 所在地昭島市美堀町2丁目
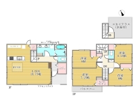
- 土地面積123.19m²
- 建物面積98.12m²
- 間 取4LDK
担当スタッフ:藤田 春樹 昭島市立拝島第二小学校まで徒歩約9分! 拝島中学校まで徒歩約24分!
西砂保育園まで徒歩約18分! 認定こども園イコロ昭和の森まで徒歩約27分!
☆当社では現地見学会を毎日開催中!【営業時間:8時30分~19時】
当日のご見学をご希望される場合はお電話が便利!
インターネット予約でいつでもご見学可能!
☆中央線「立川駅」北口から徒歩10分!
キッズスペース完備でお子様連れでもご安心。
提携駐車場が目の前にございますのでお車でのご来店も可能!
◆Saikyo Homeの安心サポート◆
1】ファイナンシャルプランナー個別相談
今後に大切な資金のご相談をFPが無料でご相談お受け致します!
2】オンラインによる接客・見学(実績多くございます)
zoom・LINE・facetimeなど様々なツールで可能!
3】内見時のご送迎(営業車)も快く承ります。
※ワゴン車・チャイルドシートも完備!
また、弊社ではお客様一人一人に合わせ大手銀行から地方銀行
ネット銀行など幅広くご紹介可能です!